Bright contemporary family home with warranty and garage.
Open-plan kitchen/family/dining with French doors to rear garden
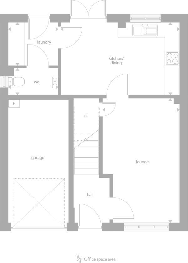
This newly built four-bedroom detached home at Chapel Gardens is arranged for everyday family life. A large open-plan kitchen/family/dining area with French doors creates a bright social hub, while a separate lounge offers quieter space. The principal bedroom includes an en-suite; additional bedrooms provide flexible room for children, guests or a home office.
Practical details suit busy households: an integral single garage, dedicated laundry room, downstairs WC and energy-efficient construction. The property comes with a 10-year NHBC warranty and a modest annual service charge (£140.70) for estate maintenance.
Be aware of the wider context: the development sits in an area classified as outer city hardship with very deprived local conditions. Mobile signal is average despite fast broadband; this may matter for some home-workers. A reservation fee applies (£500).
Overall, the house offers modern, low-maintenance family living with warranty protection and good internal layout. Buyers seeking a newly built family home with scope for personalization will find strong practical value here, while those prioritising local area affluence should weigh the neighbourhood classification.
4 bedroom detached house for sale in Chapel Gardens,
Havoc Road,
Dumbarton,
West Dunbartonshire,
G82 4JH, G82 — £312,000 • 4 bed • 1 bath
4 bedroom detached house for sale in Chapel Gardens,
Havoc Road,
Dumbarton,
West Dunbartonshire,
G82 4JH, G82 — £391,000 • 4 bed • 1 bath
5 bedroom detached house for sale in Chapel Gardens,
Havoc Road,
Dumbarton,
West Dunbartonshire,
G82 4JH, G82 — £424,000 • 5 bed • 1 bath • 1103 ft²
4 bedroom detached house for sale in Chapel Gardens,
Havoc Road,
Dumbarton,
West Dunbartonshire,
G82 4JH, G82 — £333,000 • 4 bed • 1 bath
4 bedroom detached house for sale in Chapel Gardens,
Havoc Road,
Dumbarton,
West Dunbartonshire,
G82 4JH, G82 — £377,000 • 4 bed • 1 bath
5 bedroom detached house for sale in Chapel Gardens,
Havoc Road,
Dumbarton,
West Dunbartonshire,
G82 4JH, G82 — £417,000 • 5 bed • 1 bath










































