Ideal starter home or buy-to-let close to Kettering amenities.
Town centre location, short walk to shops and schools
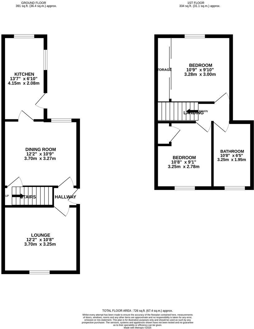
This two-bedroom Victorian mid-terrace offers a compact, well-presented home ideal for a first-time buyer or buy-to-let investor. Recently redecorated throughout, the property feels fresh and move-in ready, with contemporary kitchen units, a feature fireplace and fitted wardrobes in the main bedroom.
Set just a short walk from Kettering town centre, the house benefits from excellent mobile signal, fast broadband and easy access to shops, schools and local amenities. The secluded rear garden with outhouse adds practical outdoor space and storage—useful for families or renters.
The terrace is modest in footprint (approximately 726 sq ft) with mainly small-to-average rooms typical of period inner-urban homes. Buyers should note the local area is classified as deprived with above-average crime; on-street parking only. There are no flood risks and the property is freehold and offered chain-free.
For purchasers seeking a starter home or an investment with immediate rental potential, this property requires little cosmetic work and has scope for modest reconfiguration to create more open-plan living if desired. Structural, damp and services checks are recommended as part of any survey.
2 bedroom terraced house for sale in Princes Street, Kettering, NN16 — £160,000 • 2 bed • 1 bath • 568 ft²
2 bedroom end of terrace house for sale in Digby Street, Kettering, NN16 — £175,000 • 2 bed • 2 bath • 846 ft²
2 bedroom terraced house for sale in Princes Street, Kettering, NN16 — £200,000 • 2 bed • 1 bath • 738 ft²
2 bedroom terraced house for sale in Havelock Street, Kettering, NN16 — £140,000 • 2 bed • 1 bath • 539 ft²
2 bedroom terraced house for sale in Princes Street, Kettering, Northamptonshire, NN16 — £160,000 • 2 bed • 1 bath • 616 ft²
2 bedroom terraced house for sale in Ford Street, Kettering, NN16 — £170,000 • 2 bed • 1 bath • 828 ft²






































