Affordable Victorian terrace close to shops and direct trains to London.
Two double bedrooms over two storeys
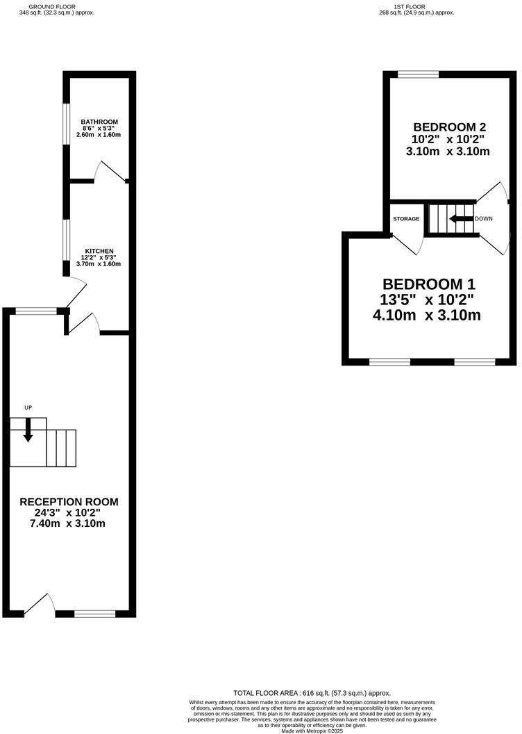
A compact, well-presented Victorian mid-terrace in central Kettering, this two-bedroom house offers straightforward living close to shops and the train station. The open-plan reception and modern fitted kitchen make efficient use of 616 sq ft, while the enclosed rear garden and brick storage shed add practical outdoor and storage space.
This home suits first-time buyers or investors seeking a city-centre property with good transport links—Kettering station is within easy walking distance for direct routes to London. The property is freehold, with mains gas central heating, double glazing installed on replacement windows, and a council tax band A, keeping running costs low.
Buyers should note material drawbacks: rooms are generally small, and the building is a pre-1900 solid-brick construction likely without cavity insulation, so thermal performance may be limited. The immediate area is classified as very deprived with very high crime levels, which is an important consideration for resident comfort and lettability.
Overall, this is an affordable, practical terrace offering immediate move-in standard accommodation and scope for modest improvements (insulation, cosmetic upgrades) to increase comfort and potential value. Viewing is recommended to assess room sizes and outdoor space in person.
2 bedroom terraced house for sale in Princes Street, Kettering, NN16 — £160,000 • 2 bed • 1 bath • 568 ft²
2 bedroom terraced house for sale in Princes Street, Kettering, NN16 — £160,000 • 2 bed • 1 bath • 679 ft²
2 bedroom terraced house for sale in Union Street, Kettering, Northamptonshire, NN16 — £200,000 • 2 bed • 1 bath • 837 ft²
2 bedroom terraced house for sale in Princes Street, Kettering, NN16 — £200,000 • 2 bed • 1 bath • 738 ft²
2 bedroom terraced house for sale in Havelock Street, Kettering, NN16 — £140,000 • 2 bed • 1 bath • 881 ft²
2 bedroom end of terrace house for sale in 2 Harcourt St, Kettering, NN16 — £142,500 • 2 bed • 1 bath • 510 ft²






















































