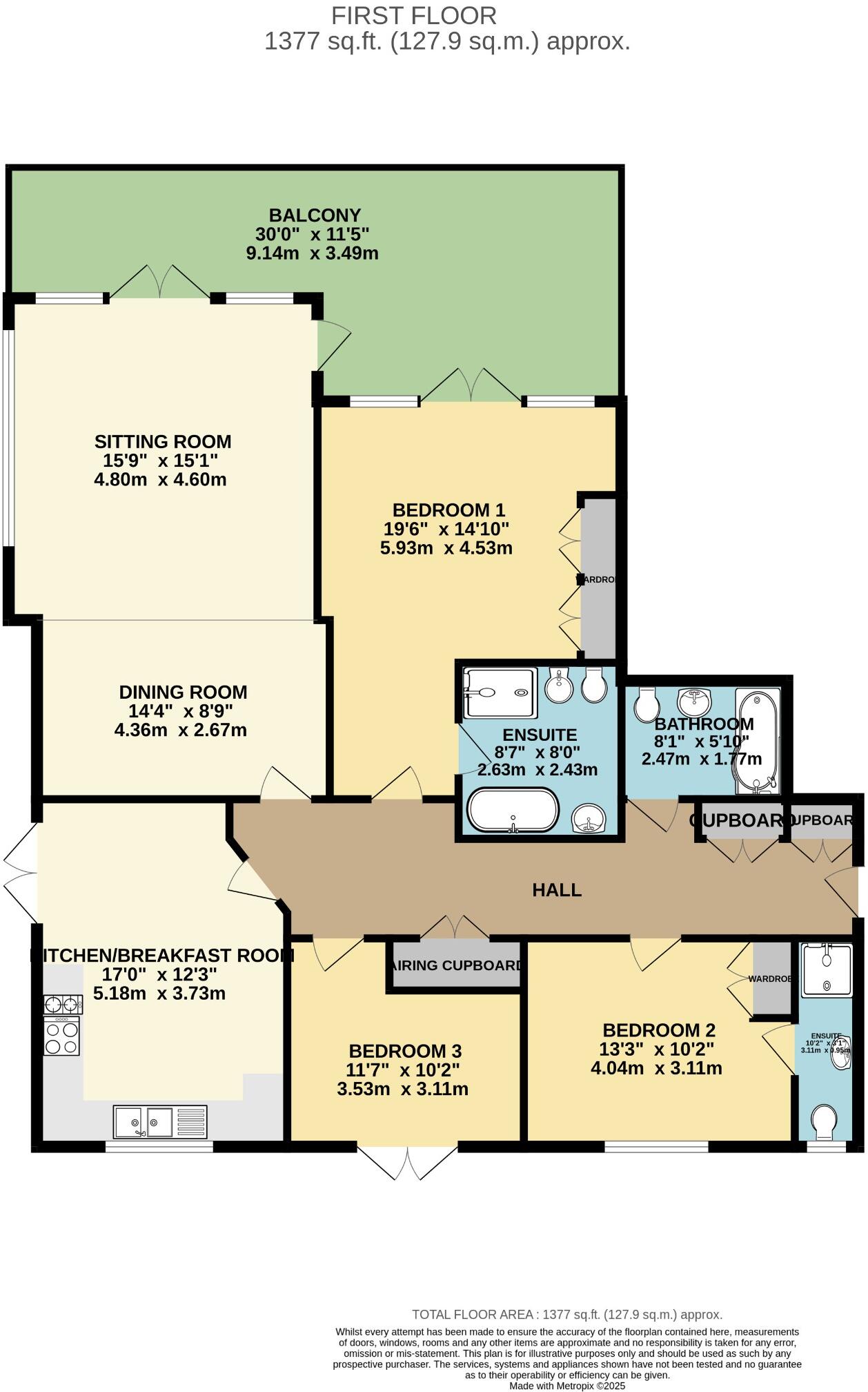
**Key Features:**
- Spacious three-bedroom apartment in a prime waterfront location
- Panoramic sea views from multiple rooms and a generous 30ft south-west facing balcony
- Two bedrooms with en-suites, plus a family bathroom
- Modern kitchen with built-in appliances and breakfast area
- Garage and allocated parking space included
- Double glazing, gas central heating, and a lift to all floors
- Security features include entry system and remote-controlled gates
- No onward chain, making for a quick purchase
This stunning first-floor apartment offers an exquisite coastal lifestyle with breathtaking views of the Exe Estuary and Dawlish Warren. Spanning over 1,377 square feet, the property features a bright sitting/dining area that opens onto a spacious balcony—ideal for enjoying spectacular sunsets. The well-equipped kitchen is perfect for family meals or entertaining, while three generous bedrooms, two with en-suites, provide comfort and privacy. With modern amenities such as double glazing and gas central heating, this home is move-in ready yet offers potential for personal updates.
Although located in a vibrant and desirable area, potential buyers should note the above-average crime rating; however, the property’s exceptional features and prime location near local amenities—such as shops, schools, and the beach—underscore its value. The apartment's lease extends for 105 years, making it a solid investment opportunity. Don’t miss your chance to experience waterfront living at its finest—schedule a viewing today!
3 bedroom apartment for sale in Spinnakers, Shelly Road, Exmouth, EX8 — £895,000 • 3 bed • 2 bath • 1348 ft²
2 bedroom apartment for sale in Pierhead, Exmouth, EX8 — £585,000 • 2 bed • 2 bath • 894 ft²
3 bedroom apartment for sale in Exmouth Marina, EX8 — £450,000 • 3 bed • 2 bath • 808 ft²
3 bedroom apartment for sale in Regatta Court, Shelly Road, Exmouth, EX8 — £725,000 • 3 bed • 2 bath • 1248 ft²
3 bedroom apartment for sale in Exmouth Marina, EX8 — £995,000 • 3 bed • 2 bath • 1304 ft²
1 bedroom apartment for sale in Shelly Road, Exmouth, EX8 — £310,000 • 1 bed • 1 bath • 454 ft²














































































