Bright family home with a long private garden and excellent transport links.
Around 1,433 sq ft living space
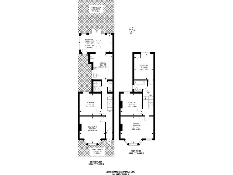
Light and space are immediate draws at this freehold terrace on Harold Road. The house spans around 1,433 sq ft with bright, neutral interiors, a sleek modern kitchen and an open-plan reception/dining room that opens onto a long 30' private garden — an easy family layout for daily living and entertaining.
Practical benefits include two bathrooms, double glazing and mains gas central heating. Transport links are strong: Upton Park and Plaistow stations are within easy reach, while West Ham Park, Westfield Stratford and the Queen Elizabeth Olympic Park provide generous nearby green and leisure space.
There are some real upgrade opportunities: the property was constructed around the 1930s–1940s and records indicate solid brick walls with no fitted insulation; further energy improvements and modernisation could add value and reduce running costs. Local area indicators show higher-than-average deprivation, though crime is low and several well-rated primary and secondary schools are within walking distance.
Overall this home suits growing families wanting space and connectivity who are prepared to invest in improving energy efficiency and finishes. Note that some listing text elsewhere mentions five bedrooms, while official property data records three bedrooms — please check the floorplan if bedroom count is critical.
3 bedroom end of terrace house for sale in Dacre Road, Plaistow, London, E13 — £550,000 • 3 bed • 1 bath • 1546 ft²
3 bedroom terraced house for sale in Dongola Road, Plaistow, London, E13 — £435,000 • 3 bed • 1 bath • 1222 ft²
5 bedroom terraced house for sale in Harold Road, London, E13 — £600,000 • 5 bed • 2 bath • 1367 ft²
3 bedroom terraced house for sale in Olive Road, Plaistow, London, E13 — £500,000 • 3 bed • 1 bath • 848 ft²
4 bedroom terraced house for sale in Harold Road, London, E13 — £650,000 • 4 bed • 3 bath
2 bedroom terraced house for sale in Edinburgh Road E13, Plaistow, London, E13 — £435,000 • 2 bed • 1 bath • 850 ft²


























































































































































