Panoramic coastal views and generous gardens ideal for growing families.
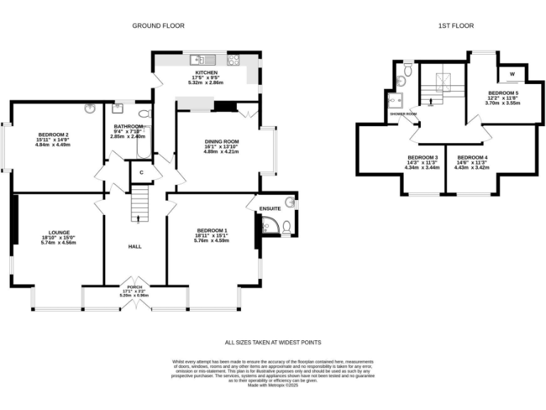
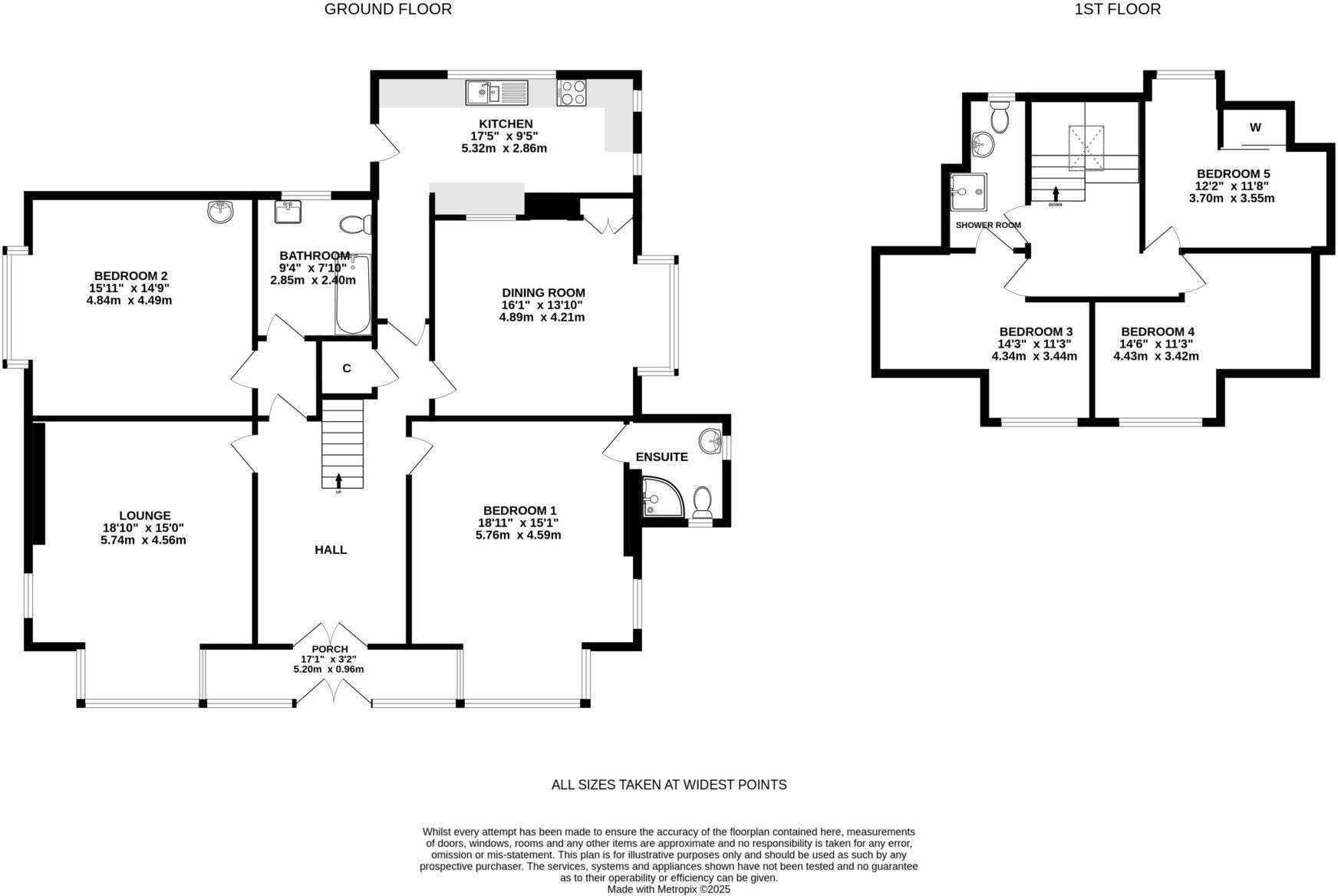
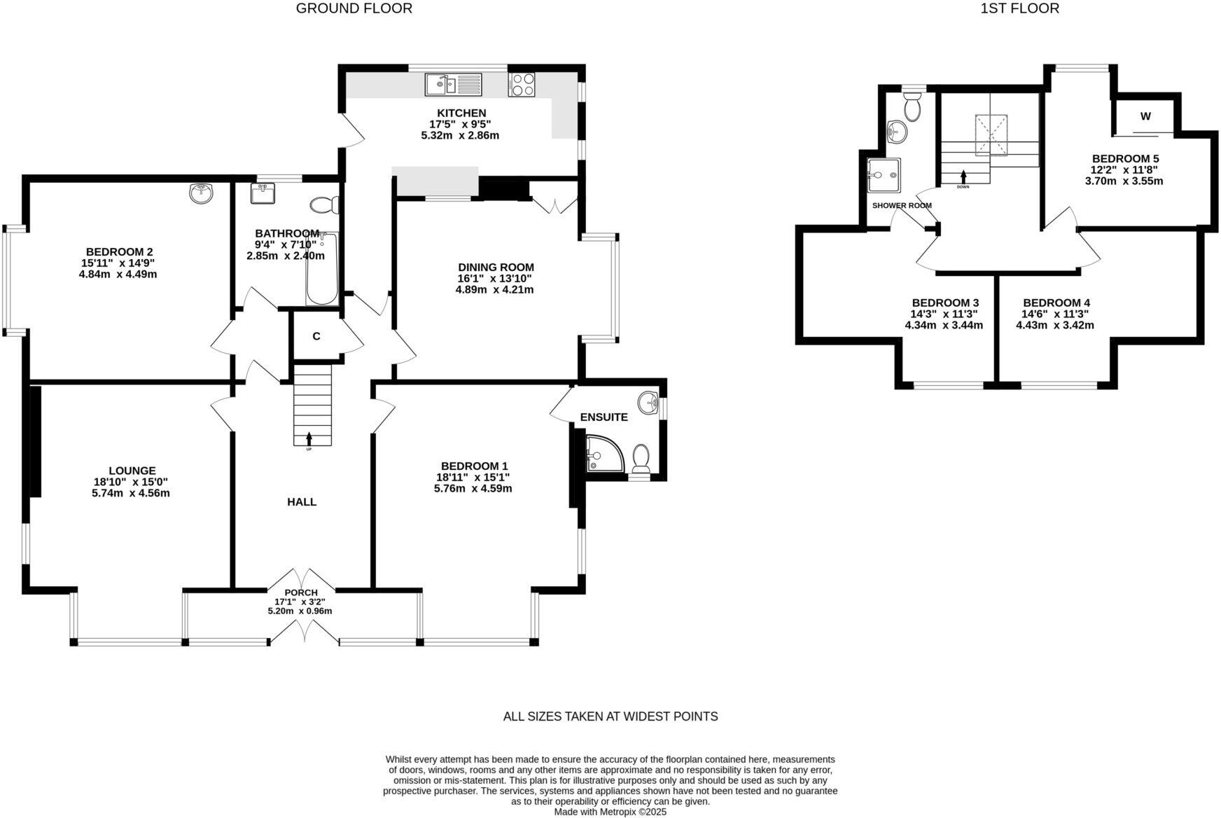
Five bedrooms across two levels, flexible family layout
Set on an extensive corner plot with panoramic views over the Firth of Clyde, this traditional detached bungalow offers flexible family accommodation across two levels. The ground floor features a bright reception hallway, lounge with estuary views, dining room, kitchen, two double bedrooms and an en-suite; three further bedrooms and a shower room occupy the upper level. Large windows, a red-tile roof and mature, landscaped gardens give the home clear character and enjoyable outdoor space.
Practical features include gas central heating, double glazing, a driveway and garage. The plot size and room count (approximately 2,077 sq ft and 23 rooms overall) suit families needing separate reception space, guest rooms or home working zones. The village setting on the Clyde coast brings local amenities, a nearby railway station with services to Largs and Glasgow, and easy access to Kelburn Country Park and Largs Marina.
Buyers should note a few material points: council tax is described as expensive, broadband speeds are only average, and the vendor makes no guarantee that all appliances are in full working order. The wider area is recorded as having significant deprivation despite the property’s attractive location, which may affect some buyer priorities. Early inspection is recommended to appreciate the views, layout and garden potential for landscaping or adaptation.
4 bedroom detached house for sale in Miller Avenue, Fairlie, Largs, KA29 0EJ, KA29 — £319,000 • 4 bed • 3 bath • 1378 ft²
4 bedroom semi-detached house for sale in Highfield Terrace, Fairlie, Largs, KA29 — £390,000 • 4 bed • 3 bath • 1916 ft²
3 bedroom detached villa for sale in 34 Craig Hill Place, Fairlie, KA29 0AY, KA29 — £255,000 • 3 bed • 1 bath • 914 ft²
4 bedroom semi-detached house for sale in 4 Castlepark Villas, Fairlie, KA29 0DQ, KA29 — £395,000 • 4 bed • 2 bath • 1765 ft²
5 bedroom detached bungalow for sale in 77 Ardrossan Road, Seamill, KA23 9NF, KA23 — £440,000 • 5 bed • 2 bath • 1959 ft²
2 bedroom detached bungalow for sale in 20 Brisbane Glen Road, Largs, KA30 8QX, KA30 — £220,000 • 2 bed • 1 bath • 861 ft²


















































































































































































































































































































































