Characterful family home with flexible living and elevated Clyde views.
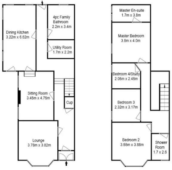
- Four bedrooms, master with en suite and sea views
- Two reception rooms plus sociable dining kitchen
- Solid maple wood flooring and original Victorian features
- Split-level terraced rear garden and side patio
- Single powered garage with driveway and on-street parking
- Gas central heating and double glazing throughout
- Average broadband speeds; excellent mobile signal
- Council tax above average; wider area shows high deprivation
This late‑Victorian semi‑detached villa on Highfield Terrace blends original period character with thoughtful modern upgrades. High ceilings, bay windows and solid maple flooring give principal rooms strong character, while recent bathroom and kitchen fittings create comfortable everyday living. The master bedroom enjoys an en suite and sea views over the Clyde, and two reception rooms plus a dining kitchen provide flexible family space.
Set on a corner plot with terraced rear gardens, a side patio and a garage/workshop with powered access, the house is arranged over two main storeys with attic potential. Gas central heating and double glazing are fitted throughout. The property is presented in walk‑in condition but retains scope for aesthetic updating to personalise finishes and maximise value.
Practical notes: the home has a single garage and driveway plus on‑street parking, average broadband speeds, excellent mobile signal and no flood risk. Council tax is above average for the area, and the wider locality is classified as very deprived despite an otherwise affluent community character locally; buyers should consider this when assessing long‑term resale and rental prospects.
This property will suit families seeking a character coastal home with sea views or buyers looking for a comfortable, ready‑to‑move‑into house with further potential. Early viewing is advised to appreciate the size, outlook and flexible layout on offer.
4 bedroom semi-detached house for sale in 4 Castlepark Villas, Fairlie, KA29 0DQ, KA29 — £395,000 • 4 bed • 2 bath • 1765 ft²
4 bedroom detached house for sale in Miller Avenue, Fairlie, Largs, KA29 0EJ, KA29 — £319,000 • 4 bed • 3 bath • 1378 ft²
3 bedroom detached villa for sale in 34 Craig Hill Place, Fairlie, KA29 0AY, KA29 — £255,000 • 3 bed • 1 bath • 914 ft²
5 bedroom detached bungalow for sale in 12 Main Road, Fairlie, KA29 0DP, KA29 — £370,000 • 5 bed • 3 bath • 2077 ft²
3 bedroom detached house for sale in Montgomerie Drive, Fairlie, KA29 — £335,995 • 3 bed • 2 bath • 1467 ft²
5 bedroom detached house for sale in Portencross Road, West Kilbride, KA23 — £400,000 • 5 bed • 2 bath






















































































































