Large garden and integral garage, ideal for growing families.
Four double bedrooms including master with en suite and fitted wardrobes
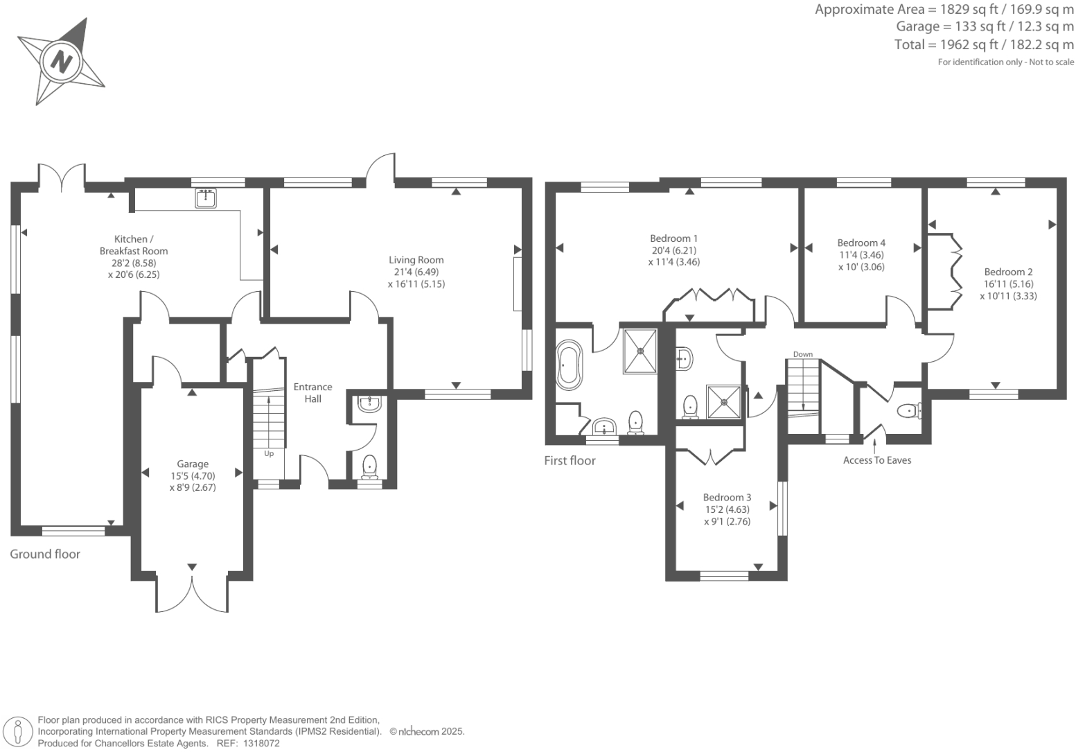
This extended four-bedroom detached house offers generous, family-friendly proportions across nearly 1,962 sq ft. The home centres on a large open-plan kitchen/diner with a family area and a triple-aspect reception room that fill the ground floor with light. A spacious entrance hall, utility room, downstairs cloakroom and integral garage add day-to-day practicality.
Upstairs provides four double bedrooms, the master with fitted wardrobes and an en suite, plus a separate shower room and WC. Outside, a large plot with driveway parking leads to the garage, giving space for children to play and room for parking and storage. Local schools rated Good, fast broadband and excellent mobile signal make this a comfortable family base in an affluent suburb.
Built in the 1950s–60s, the property benefits from double glazing installed after 2002 and mains gas central heating via a boiler and radiators. There is no flood risk and local crime is very low, which adds to the appeal for families seeking peace of mind.
Note the property’s age and construction: cavity walls appear to have no added insulation and some modernisation or energy-efficiency upgrades may be needed. Council tax is quite expensive. Buyers should factor potential insulation, heating or cosmetic works into their plans and costs.
4 bedroom detached house for sale in Woburn Close, Frimley, Camberley, GU16 — £600,000 • 4 bed • 1 bath • 1313 ft²
4 bedroom detached house for sale in Highbury Crescent, Camberley, Surrey, GU15 — £675,000 • 4 bed • 1 bath • 1556 ft²
3 bedroom semi-detached house for sale in Camberley, Surrey, GU15 — £475,000 • 3 bed • 1 bath • 1152 ft²
4 bedroom detached house for sale in Copse End, Camberley, Surrey, GU15 — £950,000 • 4 bed • 2 bath • 2429 ft²
4 bedroom detached house for sale in The Oaks, Wandle Close, Ash, Surrey, GU12 — £675,000 • 4 bed • 2 bath • 1223 ft²
5 bedroom detached house for sale in Camberley, Surrey, GU15 — £775,000 • 5 bed • 3 bath • 2137 ft²


































































































