**Standout Features:**
- Recently refurbished with modern design elements
- Brand new kitchen and bathrooms
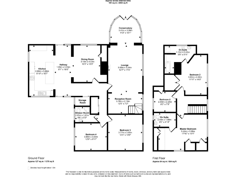
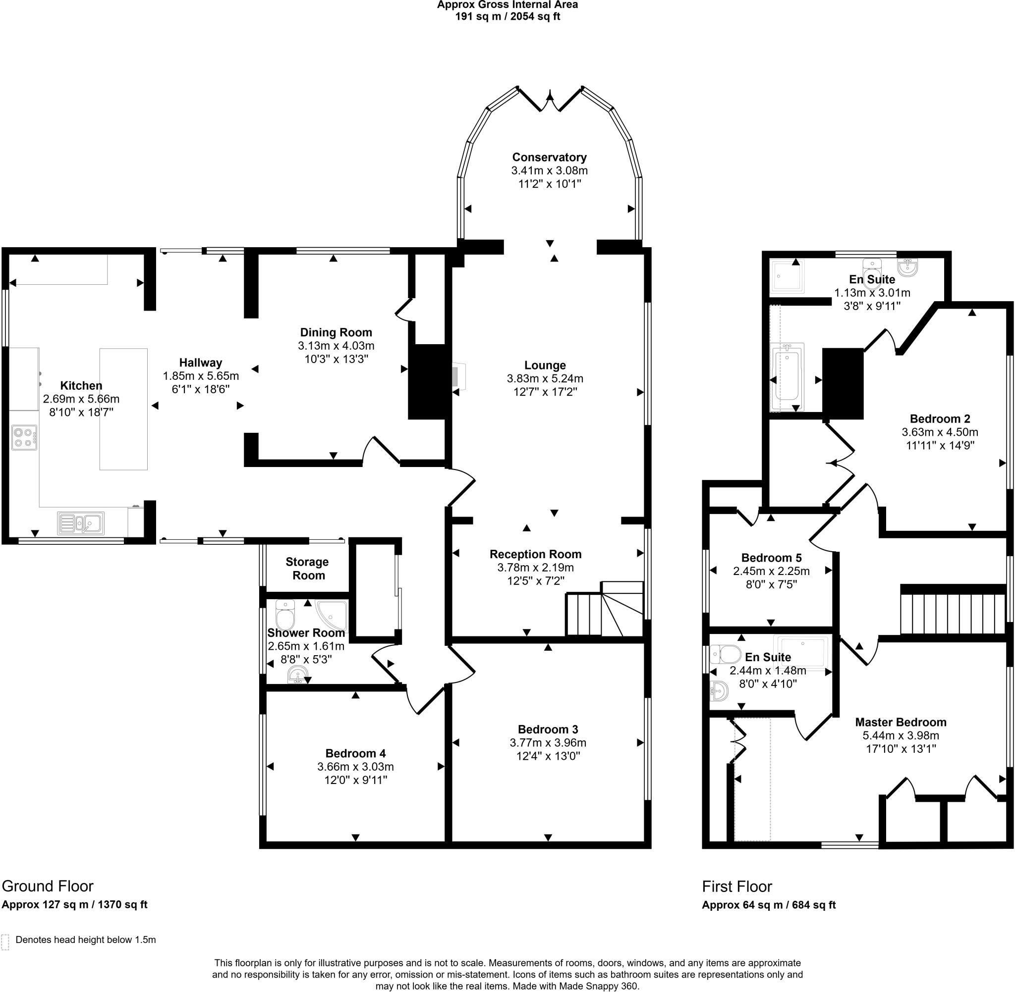
- Spacious 5-bedroom, 3-bathroom layout
- Expansive mature gardens ideal for gardening enthusiasts
- Detached property with ample parking and double garage
- Desirable location in a peaceful village setting, close to scenic gardens
**Concerns:**
- Slow broadband speeds and no mobile signal
- Council tax set above average
**Summary:**
Discover your dream home in the heart of Mawnan Smith, a charming Cornish village. This spacious, newly renovated detached family home boasts over 2000 sq ft of beautifully designed living space, featuring a stunning open-plan kitchen equipped with top-of-the-line appliances and a cozy wood-burning stove in the relaxing sitting room. With five generous bedrooms, including a light-filled master suite with enviable countryside views, this residence offers the ideal combination of comfort and luxurious living.
Step outside to indulge in a gardener's paradise with expansive lawns, mature shrubbery, and an ornamental pond, perfect for entertaining or unwinding in privacy. Situated in an affluent area near two renowned subtropical gardens, this property is perfect for families looking for a serene lifestyle. While enjoying the tranquility, be aware of potential downsides like slower broadband and above-average council tax. Don't miss out on this exclusive opportunity—a true gem that won't last long on the market!
4 bedroom detached house for sale in Castle View Park, Mawnan Smith, TR11 — £570,000 • 4 bed • 2 bath • 1469 ft²
4 bedroom detached house for sale in Greenfields Close,Mawnan Smith,Falmouth,TR11 5EX, TR11 — £750,000 • 4 bed • 4 bath • 2032 ft²
4 bedroom detached house for sale in Castle View Park, Mawnan Smith, TR11 — £685,000 • 4 bed • 2 bath • 915 ft²
3 bedroom link detached house for sale in Shute Hill, Mawnan Smith, Falmouth, TR11 — £435,000 • 3 bed • 1 bath • 1152 ft²
4 bedroom detached house for sale in Mawnan Smith, Nr Helford Estuary, TR11 — £650,000 • 4 bed • 2 bath • 1314 ft²
3 bedroom detached house for sale in Castle View Park, Mawnan Smith, Falmouth, Cornwall, TR11 — £650,000 • 3 bed • 1 bath • 2077 ft²






























































































































































