Spacious split-level home with private roof terrace and panoramic Thames outlook.
Grade II listed 17th-century building with character features
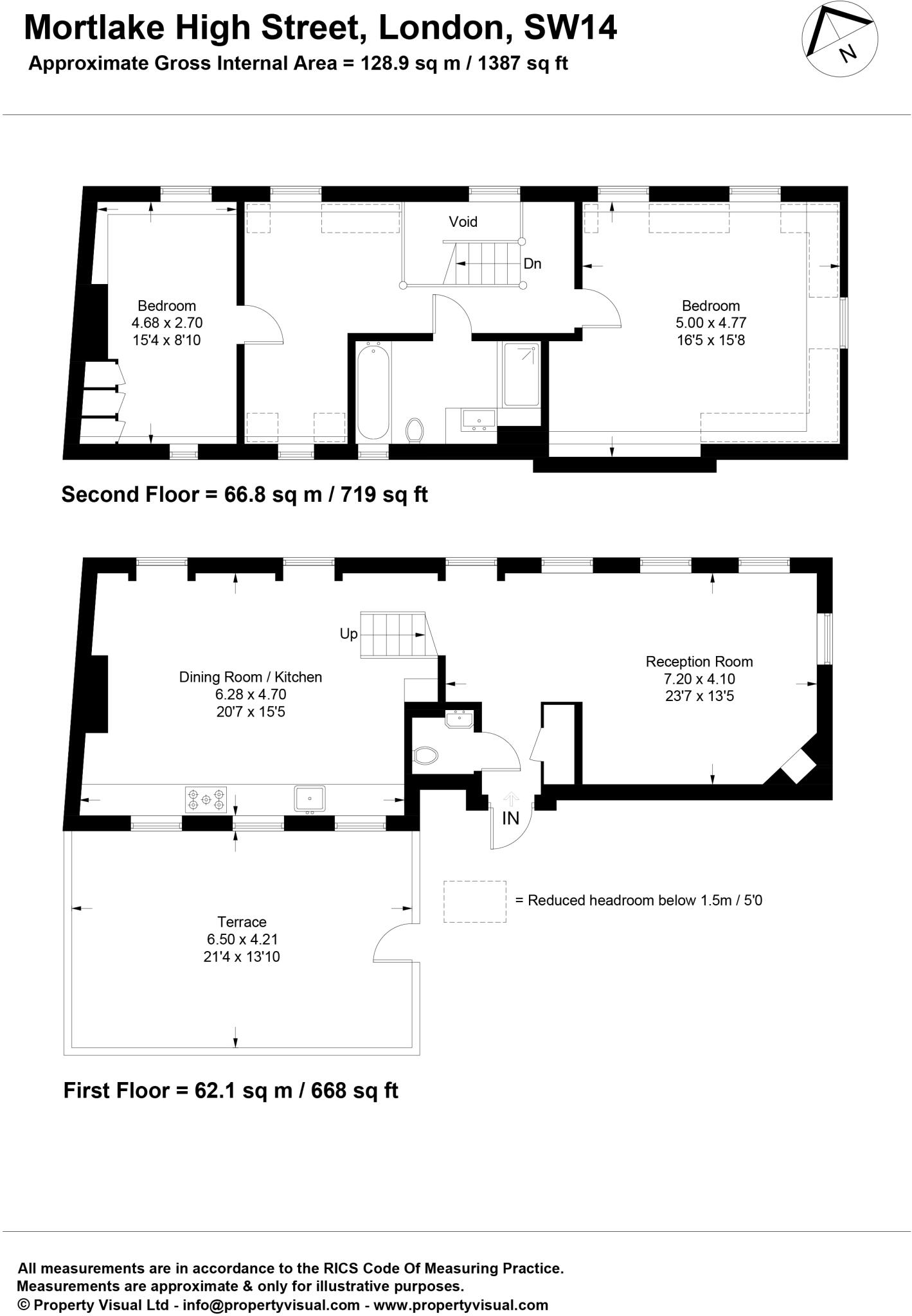
Set within a Grade II listed 17th-century building, this newly renovated split-level apartment combines Georgian character with generous living space. Large sash windows and exposed beams frame impressive views across the Thames, while an expansive reception and separate kitchen/dining provide flexible daily living and entertaining space.
The apartment offers two double bedrooms, a versatile seating/office area and a private roof terrace—a rare outdoor space for this location. The apartment benefits from a share of freehold and an exceptionally long lease, delivering ownership security uncommon for converted period properties.
Buyers should note the property’s EPC rating is E and the original solid brick construction means limited insulation without listed-consent works. The Grade II listing may restrict alterations and could complicate some improvements. There is one bathroom only and council tax is high. Service charge is £610 per annum, below average for the area.
This home will suit buyers seeking a character-filled riverside residence with roomy accommodation and period detailing, who are comfortable with listed-building constraints and the practical realities of upgrading energy performance where possible.
1 bedroom apartment for sale in Mortlake High Street, East Sheen, SW14 — £900,000 • 1 bed • 3 bath • 1819 ft²
1 bedroom flat for sale in Mortlake High Street, London, SW14 — £975,000 • 1 bed • 3 bath • 1800 ft²
2 bedroom flat for sale in Mortlake High Street, London, SW14 — £1,850,000 • 2 bed • 4 bath • 2895 ft²
2 bedroom apartment for sale in Mortlake High Street, East Sheen, SW14 — £1,750,000 • 2 bed • 4 bath • 2997 ft²
1 bedroom apartment for sale in Mortlake High Street, East Sheen, SW14 — £975,000 • 1 bed • 2 bath • 1286 ft²
3 bedroom apartment for sale in Mortlake High Street, London, SW14 8HQ, SW14 — £2,250,000 • 3 bed • 3 bath • 2759 ft²














































































