**Standout Features:**
- Grade II listed Georgian property built in 1619 with historical significance
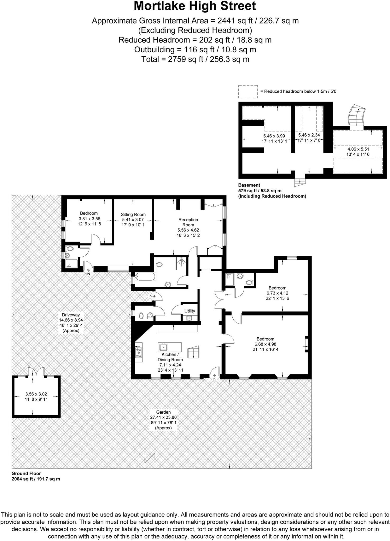
- Generous 2,759 sq. ft. interior on a 0.23-acre plot with spacious private garden (87 x 78 ft) and river frontage
- Ample parking for up to 5 cars and additional storage space in a 600 sq. ft. basement with a wine cellar
- Three double bedrooms, including an en-suite, and potential for a fourth bedroom or flexible reception space
- Excellent connectivity with nearby Mortlake and Barnes Bridge stations, and access to local amenities
Experience luxury living in this exceptional Grade II listed Georgian residence, "Suthrey House," that effortlessly blends historical charm with modern convenience. Spanning over 2,759 sq. ft., this magnificent home features a welcoming kitchen/dining room with large windows framing stunning garden views, a cozy principal reception room with a log burner, and three generously-sized bedrooms. The expansive grounds offer tranquility and privacy, making it perfect for families and those who appreciate the outdoors.
While the property boasts significant potential for renovations—subject to planning regulations—the listed status may introduce unique challenges. The potential for conversion of the spacious basement into further living accommodations adds to its appeal for investors and families looking to personalize their space. Located in affluent Mortlake, with easy access to notable schools, Richmond Park, and Kew Gardens, this residence presents a rare opportunity to own a piece of history in a vibrant community. Don't miss out on this chance to make it your own!
2 bedroom apartment for sale in Mortlake High Street, East Sheen, SW14 — £1,995,000 • 2 bed • 4 bath • 2997 ft²
1 bedroom apartment for sale in Mortlake High Street, East Sheen, SW14 — £1,045,000 • 1 bed • 3 bath • 1819 ft²
1 bedroom flat for sale in Mortlake High Street, London, SW14 — £1,045,000 • 1 bed • 2 bath • 1800 ft²
1 bedroom flat for sale in Mortlake High Street, London, SW14 — £975,000 • 1 bed • 2 bath • 1300 ft²
5 bedroom terraced house for sale in Thames Street, Sunbury-on-Thames, Surrey, TW16 — £2,250,000 • 5 bed • 4 bath • 3604 ft²
2 bedroom flat for sale in Mortlake High Street, London, SW14 — £1,995,000 • 2 bed • 4 bath • 2895 ft²


















































