High-floor 2-bed with premium amenities and strong rental income potential.
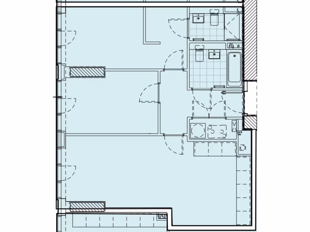
Floor-to-ceiling windows, 805 sq ft, bright 11th-floor apartment
A modern 2-bedroom, 2-bath apartment on the 11th floor of Elizabeth Tower, offering 805 sq ft of light-filled living with floor-to-ceiling windows and high-quality fittings. The building provides extensive resident facilities — 20m pool, gym, roof terraces, concierge and co‑working spaces — and holds an EWS1 A1 rating, making it mortgage-friendly.
This unit is currently tenanted until July 2026 and is showing a strong income profile: current rent £2,000 pcm (6.08% yield) with a projected increase to £2,050 pcm (6.23% yield). With a long lease (reported c.999 years) and low local crime, the apartment suits buy-to-let investors seeking city-centre rental income as well as owner-occupiers wanting contemporary city living.
Buyers should note recurring costs and neighbourhood context. Annual service charge is approximately £2,730.52 with ground rent around £392 and building insurance ~£438.21. Heating is electric (room heaters), which can be more costly than communal gas systems. The wider area is classified as a cosmopolitan, multicultural student neighbourhood with very high deprivation scores — good rental demand but potential for noise and transient tenancies.
Overall this is a well-specified, mortgage-friendly city-centre apartment with strong rental credentials and full resident amenities. The main trade-offs are ongoing service charges, electric heating, and the local student-dominated environment.
2 bedroom apartment for sale in 141 Chester Road, Greater Manchester, M15 — £410,888 • 2 bed • 2 bath • 805 ft²
1 bedroom apartment for sale in 141 Chester Road, Greater Manchester, M15 — £310,888 • 1 bed • 1 bath • 612 ft²
1 bedroom apartment for sale in 141 Chester Road, Greater Manchester, M15 — £332,000 • 1 bed • 1 bath • 620 ft²
2 bedroom apartment for sale in 141 Chester Road, Greater Manchester, M15 — £380,000 • 2 bed • 2 bath • 805 ft²
2 bedroom apartment for sale in 141 Chester Road, Greater Manchester, M15 — £459,888 • 2 bed • 2 bath • 927 ft²
2 bedroom apartment for sale in 141 Chester Road, Greater Manchester, M15 — £440,888 • 2 bed • 2 bath • 927 ft²


















































































