Three bedrooms, large garden and quick rail link to London.
Edwardian semi-detached with high ceilings and period character
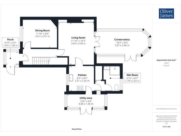
A roomy Edwardian semi with genuine family appeal, this three-bedroom home combines period proportions and recent upgrades. High ceilings and two generous reception rooms sit alongside a large, vaulted conservatory that extends living space and floods the rear with light. The modern kitchen and a newly installed boiler (2025) reduce short-term maintenance and make the house move-in ready for a growing household.
Practical benefits include driveway parking, a large 0.11-acre plot and a 15-minute walk to the station with fast trains to London in under 50 minutes — useful for commuters. Local schools are well regarded and the high street amenities are an easy stroll away. The property is freehold and offered chain-free, simplifying a quick purchase.
Buyers should note the single first-floor bathroom and downstairs wet room, and an EPC rating of D; further energy improvements may be beneficial. The area is classified as more deprived than average, which may affect long-term resale values. Overall, this is a spacious, characterful family home with scope for improvement and clear commuter advantages.
2 bedroom end of terrace house for sale in North Street, Huntingdon, Cambridgeshire., PE29 — £290,000 • 2 bed • 2 bath • 759 ft²
3 bedroom semi-detached house for sale in Alder Drive, Huntingdon, Cambridgeshire., PE29 — £315,000 • 3 bed • 1 bath • 731 ft²
4 bedroom semi-detached house for sale in Rodney Road, Hartford, Huntingdon, Cambridgeshire, PE29 — £375,000 • 4 bed • 1 bath • 1367 ft²
3 bedroom semi-detached house for sale in Ermine Street, Huntingdon, PE29 — £250,000 • 3 bed • 1 bath • 955 ft²
3 bedroom semi-detached house for sale in Stepping Stones, Hemingford Grey, Cambridgeshire, PE28 — £365,000 • 3 bed • 1 bath • 1302 ft²
3 bedroom semi-detached house for sale in Cowper Road, Huntingdon, Cambridgeshire., PE29 — £250,000 • 3 bed • 1 bath • 775 ft²






































































































































































































