Fully refurbished, income-producing property with conversion upside and secure parking.
- Freehold commercial investment producing £66,000 gross pa
- Strong yield of c.13% at the asking price
- Fully refurbished high-spec interiors throughout
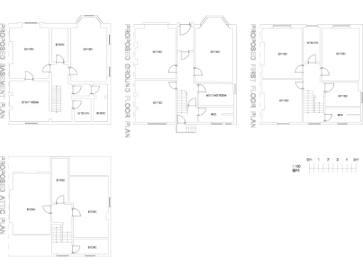
- Nine self-contained office suites across four floors
- Secure private car park for up to eight vehicles
- First-floor storage offers conversion potential to increase income
- Located in a very deprived area with high local crime
- Tenants in situ; immediate income but growth depends on repositioning
A substantial freehold commercial investment in Bootle, offered fully let with immediate income and strong yield. The building produces £66,000 gross annually (c.13% yield at the asking price), delivering immediate cash flow for an investor seeking secure, long-term revenue.
The property has been fully refurbished to a high specification: two new combi boilers, comfort cooling, LED lighting, high-spec male and female toilets (including a walk-in shower), modern staff kitchen, break room and durable finishes throughout. Arranged over four floors as nine self-contained office suites, the layout suits multiple tenants and provides operational resilience.
Practical benefits include a secure private car park for up to eight vehicles, excellent mobile and broadband connectivity, and a prominent position within an established commercial hub with good transport links to Liverpool city centre. There is clear scope to increase income by converting the first floor currently used for storage into additional lettable space.
Buyers should note the wider social and economic context: the immediate area is classified as very deprived with high local crime levels and a “hampered aspiration” profile. These factors can impact tenant demand and long-term capital growth and should be factored into underwriting and management plans.
Office for sale in Stanley Road, Liverpool, Merseyside, L20 — £425,000 • 1 bed • 1 bath • 3062 ft²
Commercial property for sale in 219 - 223 Knowsley Road, Bootle, L20 — £500,000 • 1 bed • 1 bath • 1210 ft²
Commercial property for sale in Forge Street, Liverpool, L20 — £550,000 • 1 bed • 1 bath • 15758 ft²
Office for sale in Barrows Cottages, Dragon Lane, Whiston, Prescot, L35 — £399,950 • 1 bed • 1 bath • 2144 ft²
High street retail property for sale in 6-8 Sefton Road, Litherland, Liverpool L21 7PG, L21 — £185,000 • 1 bed • 1 bath • 980 ft²
2 bedroom flat for sale in St. Oswalds Lane, Bootle, Merseyside, L30 — £72,000 • 2 bed • 1 bath • 624 ft²


































































































