Five bedrooms, landscaped garden and easy access to Didsbury amenities.
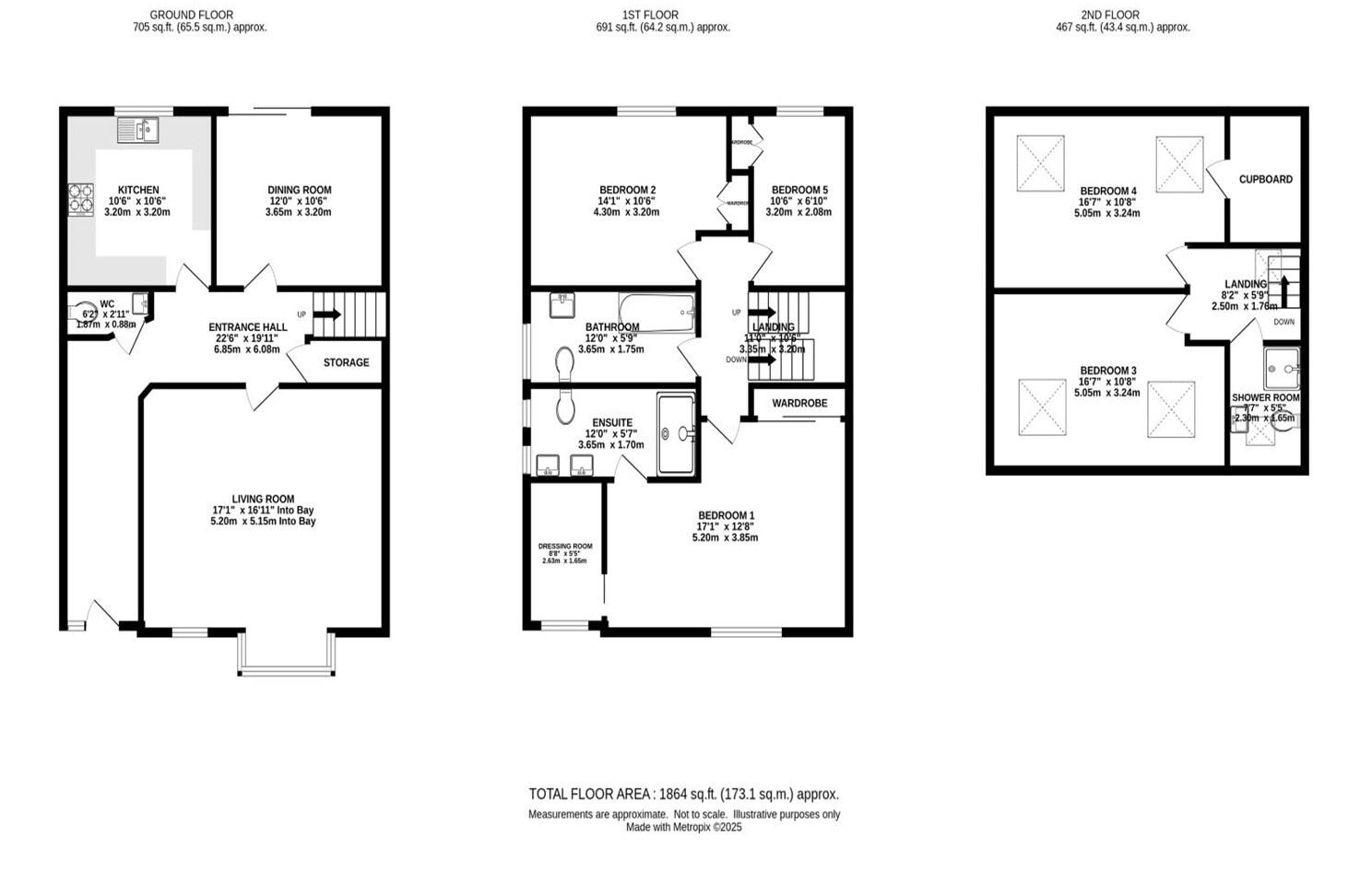
Spacious 1,864 sq ft over three floors
This spacious bay-fronted semi-detached home extends over three floors and 1,864 sq ft, offering generous family accommodation in sought-after Didsbury. The layout includes two large reception rooms, a modern fitted kitchen, five double bedrooms and three stylish bathroom suites — enough space for family life and flexible working at home.
Outside, the private landscaped rear garden and detached garage provide a secure outdoor room and storage, while the paved driveway offers off-street parking for two cars. The house sits on a quiet cul-de-sac with easy access to Didsbury and West Didsbury villages, Fog Lane Park and strong local transport links.
The property is well presented and move-in ready, appealing to families who value space, nearby parks and highly rated schools. Practical points to note: the accommodation is arranged over three floors, which may be less convenient for limited mobility, and council tax levels are above average. Broadband and mobile signals are strong, and the home is freehold.
3 bedroom semi-detached house for sale in Anerley Road, Didsbury Village, M20 — £550,000 • 3 bed • 1 bath • 1076 ft²
4 bedroom detached house for sale in Goulden Road, West Didsbury, Manchester, M20 — £1,200,000 • 4 bed • 2 bath • 2785 ft²
3 bedroom semi-detached house for sale in Georgia Avenue, West Didsbury, M20 — £550,000 • 3 bed • 2 bath • 1802 ft²
3 bedroom semi-detached house for sale in Austin Drive, Didsbury, M20 — £550,000 • 3 bed • 1 bath • 1091 ft²
5 bedroom semi-detached house for sale in Longton Avenue, West Didsbury, M20 — £750,000 • 5 bed • 2 bath • 1716 ft²
3 bedroom semi-detached house for sale in Whitehaven Gardens, Didsbury, M20 — £600,000 • 3 bed • 1 bath • 1389 ft²






































































































