Bright family home with generous garden and excellent transport links.
Elevated position with far-reaching views
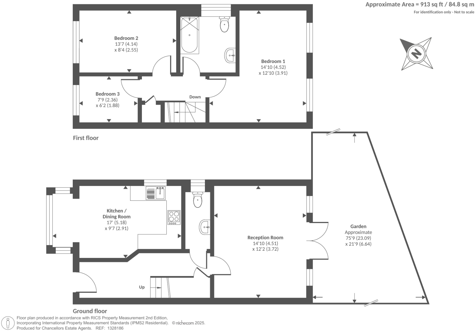
Set on an elevated plot with far-reaching views, this newly renovated three-bedroom semi-detached home suits growing families and commuters. The open-plan kitchen/dining room and modern fittings provide immediate move-in condition, while underfloor heating adds efficiency and comfort. The large, enclosed rear garden is laid to lawn with a patio, offering safe outdoor space and scope for landscaping or extension (subject to planning).
Practical benefits include driveway off-street parking, a ground-floor WC, and easy access to the M40 and the local train station for straightforward commuting. Local schools include two outstanding secondaries and a mixture of primary options; one nearby primary is rated as requiring improvement.
Notable points: the house is an average-sized home at 913 sq ft on a large plot, with council tax above average and average local crime levels. The property has been newly renovated, so immediate refurbishment is not required, but the plot and layout present potential for further extension or improvement for added value.
3 bedroom semi-detached house for sale in Carrington Road, High Wycombe, HP12 — £400,000 • 3 bed • 1 bath • 905 ft²
3 bedroom semi-detached house for sale in Quebec Road, High Wycombe, HP13 — £435,000 • 3 bed • 2 bath • 1022 ft²
3 bedroom semi-detached house for sale in High Wycombe, Buckinghamshire, HP13 — £440,000 • 3 bed • 1 bath • 940 ft²
3 bedroom semi-detached house for sale in High Wycombe, Buckinghamshire, HP13 — £525,000 • 3 bed • 2 bath • 1202 ft²
3 bedroom semi-detached house for sale in Eastwood Road, Stokenchurch, HP14 — £475,000 • 3 bed • 1 bath • 1106 ft²
3 bedroom semi-detached house for sale in Clearbrook Close, Loudwater, HP13 — £485,000 • 3 bed • 1 bath • 1193 ft²










































































