EH48 1NX - High street retail property for sale in 17 George Place, Ba…

View on Property Piper

High street retail property for sale in 17 George Place, Bathgate, EH48

Summary - 17, GEORGE PLACE EH48 1NX

1 bed 1 bath Retail Property (high street)

**Standout Features:**
- Prime town centre location on George Place, Bathgate
- Large stone-built property with glazed frontage and roller shutters
- Total size of 4,044 sq ft (469 sq m)
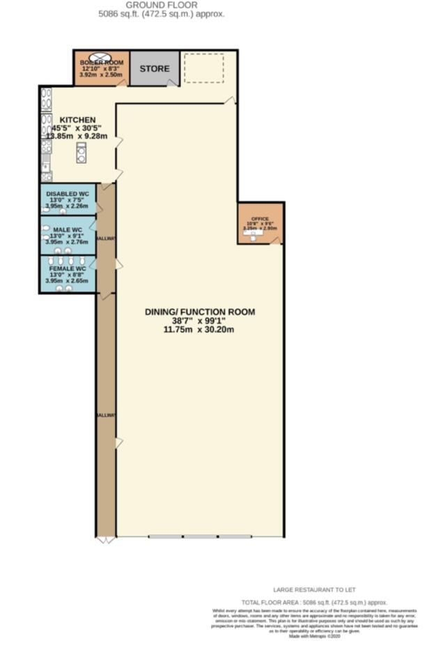
- Flexible layout suitable for various commercial uses and potential sub-division
- Previous use as a restaurant with existing amenities for dining and food service
- Landlord may consider refurbishment prior to tenant entry

**Summary:**
Located in the heart of Bathgate, this expansive high-street retail property offers significant potential for various commercial ventures. Formerly a restaurant, the space boasts a large open dining/function area, a functional kitchen with ample prep space, and well-provisioned restroom facilities. The prominent stone facade and large glazed windows ensure high visibility and foot traffic, making it an ideal location for businesses aiming to attract a bustling clientele.

The property is adaptable, allowing for sub-division to meet specific tenant needs—perfect for investors or entrepreneurs looking to capitalize on Bathgate's thriving community. While the area holds potential for growth, it's worth noting that the local demographic is classified as "constrained renters," which could affect business dynamics. Don’t miss the opportunity to secure this versatile space in a vibrant town that is just 20 miles from Edinburgh. With the landlord open to refurbishment negotiations, this property is poised to be a prime catch for the right tenant—act fast!

Property Details

Brochure Descriptions

Image Descriptions

Textual Property Features

Detected Visual Features

Nearest Bars And Restaurants

,,,,}

Nearest General Shops

,,}

Nearest Grocery shops

,,}

Nearest Supermarkets

,,}

Nearest Religious buildings

,,}

Nearest Medical buildings

,,,}

Nearest Airports

}

Nearest Leisure Facilities

,,,,}

Nearest Tourist attractions

,,}

Nearest Train stations

,,,,}

Nearest Bus stations and stops

,,,,}

Nearest Hotels

,,}

Tags

Local Market Stats

Similar Properties

Meta

High Res Images

Compatible Images

Low res Images

Thumbnails

Raw Images