Move-in ready family home with loft conversion potential on sought-after Heaver Estate.
Three bedrooms plus unconverted loft — conversion potential (subject to consents)
Contemporary fitted kitchen with integrated double oven and induction hob
Good rear garden with side access; small walled front garden
Double glazing and mains gas central heating installed
Cavity walls assumed uninsulated — upgrade advised to improve efficiency
Single family bathroom and separate downstairs WC only
Cosmetic updates recommended: replace carpets and refresh finishes
EPC D; built 1967–1975 (mid-20th-century construction)
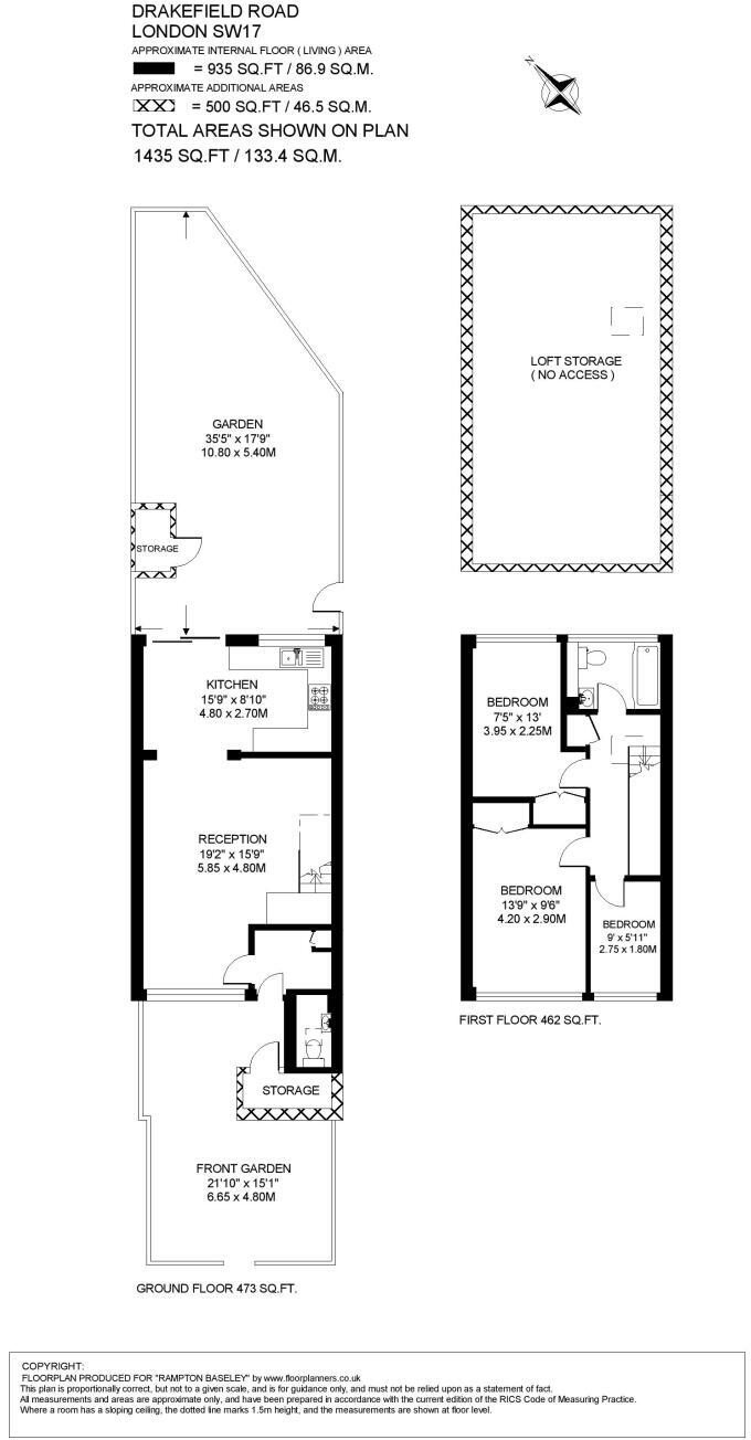
Set on sought-after Drakefield Road within the Heaver Estate, this three-bedroom end-of-terrace offers practical family living with clear scope to add value. The ground floor has a contemporary open-plan kitchen flowing through an exposed brick arch into a bright reception room, with direct access to a rear garden and side store. Fixtures are neutral and move-in ready, making the house suitable for immediate occupation or rental.
Upstairs provides three bedrooms and a family bathroom, with an unconverted loft accessed by a pull-down ladder — a straightforward opportunity for extension or conversion (subject to consents) to increase living space and resale value. The property benefits from double glazing and mains gas central heating; however, the cavity walls are assumed uninsulated, so insulation improvements could reduce running costs and improve the EPC rating (currently D).
Outside, the property has a small front garden, side access and a larger rear garden laid to lawn with a patio area — ideal for family outdoor space in an inner-city setting. Local amenities and transport are excellent with Tooting Bec and Balham stations nearby, outstanding and well-rated schools within walking distance, and plentiful shops and restaurants.
This home will suit a young family or buyers seeking refurbishment potential in a low-crime, affluent area. Be aware of modest structural age (constructed 1967–1975), a single bathroom, and cosmetic updates such as carpets and decorative finishes which, once addressed, could significantly enhance comfort and value.
3 bedroom semi-detached house for sale in Drakefield Road, SW17 — £895,000 • 3 bed • 1 bath • 1400 ft²
5 bedroom terraced house for sale in Drakefield Road, SW17 — £2,250,000 • 5 bed • 2 bath • 2540 ft²
5 bedroom terraced house for sale in Drakefield Road, SW17 — £2,850,000 • 5 bed • 3 bath • 3724 ft²
3 bedroom terraced house for sale in Gatton Road, London, SW17 — £775,000 • 3 bed • 1 bath • 959 ft²
4 bedroom end of terrace house for sale in Hillbrook Road, London, SW17 — £925,000 • 4 bed • 2 bath • 1291 ft²
2 bedroom apartment for sale in Drakefield Road, SW17 — £820,000 • 2 bed • 2 bath • 962 ft²


















































































