Ready-to-move family home with garden and loft bedroom.
Chain-free with vacant possession
Four bedrooms across three floors, flexible living
Windows and doors replaced in 2018 for efficiency
South-facing rear garden with patio and small lawn
Outhouse for storage; conversion potential (STPP)
Small plot and modest outdoor space
Very deprived area and higher local crime rates
Buyers advised to obtain independent surveys
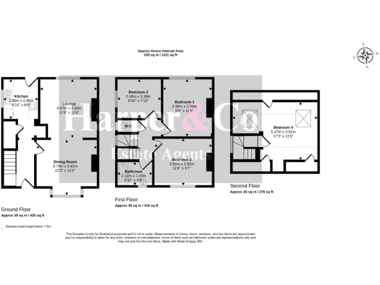
A practical, chain-free four-bedroom semi-detached home on three floors, presented in good decorative order and ready to move into. The property benefits from recent upgrades including replacement windows and doors (2018), new radiators and safety certificates, so it suits buyers who want minimal immediate works. The top-floor bedroom with Velux windows offers quiet privacy and a pleasant outlook, while the south-facing rear garden and patio provide useful outdoor space for family life.
Layout works well for families or first-time buyers: separate lounge and dining areas, a good-sized kitchen with ample storage, three bedrooms on the first floor plus an additional fourth bedroom on the top floor, and a family bathroom with a separate W/C. There is an outhouse that provides storage and could be converted subject to planning (STPP). Off-street parking exists and there is scope to create a front driveway if required.
Buyers should note material local-area points: the property sits in a very deprived area with higher-than-average crime levels and an “endeavouring social renters” local classification. The plot is modest with a small front and rear garden, so outdoor space is limited compared with larger suburban plots. Although recently renovated internally, purchasers should commission their own surveys and service checks for full assurance.
Overall this is a reasonably priced, low-running-cost freehold home (very cheap council tax) offered with vacant possession — a straightforward purchase for families, first-time buyers or investors seeking a city-town property with immediate rental or occupation potential.
4 bedroom terraced house for sale in Norton Road, Norton, Stockton-on-Tees, Durham, TS20 2PT, TS20 — £140,000 • 4 bed • 1 bath • 1832 ft²
4 bedroom semi-detached house for sale in Albany Road, Norton, Stockton-on-Tees, Durham, TS20 2QX, TS20 — £160,000 • 4 bed • 1 bath • 1378 ft²
4 bedroom end of terrace house for sale in Norton Road, Norton, Stockton-On-Tees, TS20 2BY, TS20 — £130,000 • 4 bed • 1 bath • 1431 ft²
4 bedroom semi-detached house for sale in Darlington Lane, Norton, Stockton-On-Tees, TS20 — £200,000 • 4 bed • 1 bath • 1120 ft²
4 bedroom semi-detached house for sale in Station Road, Norton, TS20 — £360,000 • 4 bed • 2 bath • 1528 ft²
3 bedroom semi-detached house for sale in Norton Road, Stockton-On-Tees, TS20 — £125,000 • 3 bed • 2 bath • 710 ft²






































































































