TW11 9DJ - 4 bed extended edwardian family home in Fairfax Road, TW11…

View on Property Piper

4 bedroom terraced house for sale in Fairfax Road, Teddington, TW11

Summary - 3 FAIRFAX ROAD TEDDINGTON TW11 9DJ

4 bed 2 bath Terraced

Spacious family living close to parks, schools and river leisure.
Extended four-bedroom Edwardian terrace with period features
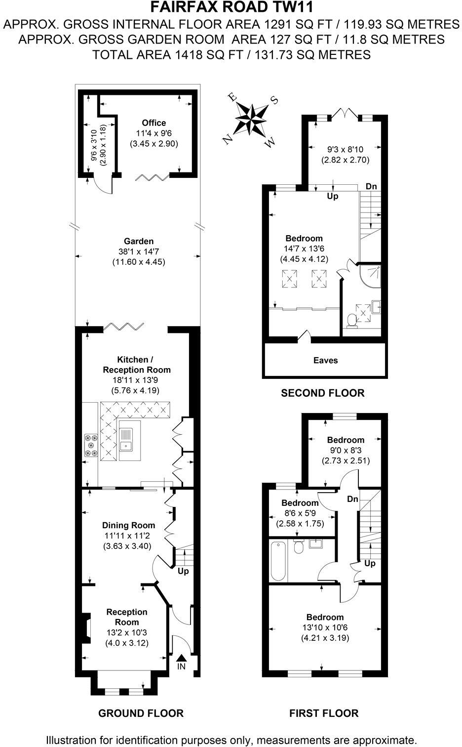
This beautifully extended four-bedroom Edwardian terrace on Fairfax Road blends period character with contemporary family living. Bright, elegant reception rooms retain original features while a substantial kitchen–dining/family space opens to a private, landscaped rear garden and a separate garden studio — ideal for home working or a playroom.

Set within easy walking distance of Bushy Park, riverside clubs and several highly rated schools, the location is a major draw for families. The house offers generous bedroom sizes, two modern bathrooms and flexible living across well-proportioned, light-filled floors totalling about 1,291 sq ft.

Practical details: the property is freehold, has double glazing installed post-2002 and mains gas central heating with a boiler and radiators. The building is solid-brick (likely without cavity insulation) and sits on a small plot, so external maintenance and any future insulation upgrades should be considered.

Overall this is a rare family-ready home in a very affluent, low-crime neighbourhood with excellent broadband and mobile signal. Buyers wanting extra outdoor space or a larger plot should note the garden is modest in size; cosmetic updating or energy-efficiency improvements may be needed to suit long-term budgets.

Property Details

Image Descriptions

Floorplan Description

Rooms

Textual Property Features

Target Audience

AI Tags

Detected Visual Features

EPC Details

Nearby Schools

Nearest Bars And Restaurants

,,,,}

Nearest General Shops

,,}

Nearest Grocery shops

,,}

Nearest Supermarkets

,,}

Nearest Religious buildings

,,}

Nearest Medical buildings

,,,}

Nearest Airports

,,}

Nearest Leisure Facilities

,,,,}

Nearest Tourist attractions

,,}

Nearest Train stations

,,,,}

Nearest Bus stations and stops

,,,,}

Nearest Hotels

,,}

Tags

Local Market Stats

AirBnB Data

Similar Properties

Meta

High Res Images

Compatible Images

Low res Images

Thumbnails

Raw Images

High Res Floorplan Images

Compatible Floorplan Images

Low res Floorplan Images

FloorplanImages Thumbnail

Raw Floorplan Images