Private garden, separate studio and parking near strong transport links.
- Two double bedrooms, bright living room and separate modern kitchen
- Private garden plus detached studio ideal for office or gym
- Off-street parking included
- Long lease: c.161 years remaining
- Compact size: about 550 sq ft (small overall)
- Solid-brick walls likely lack insulation, may affect heating efficiency
- EPC C; mains gas boiler and radiators
- Average broadband speeds; area recorded as very deprived
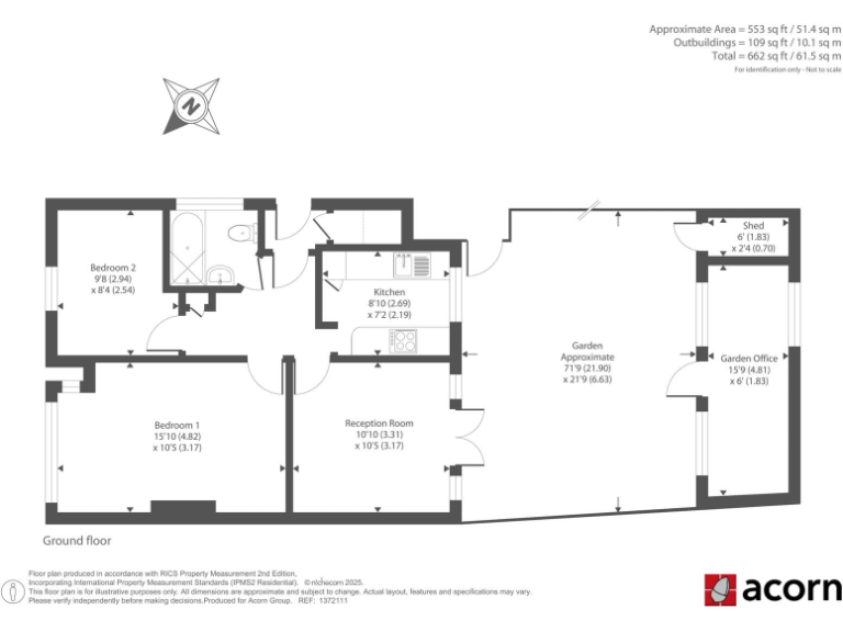
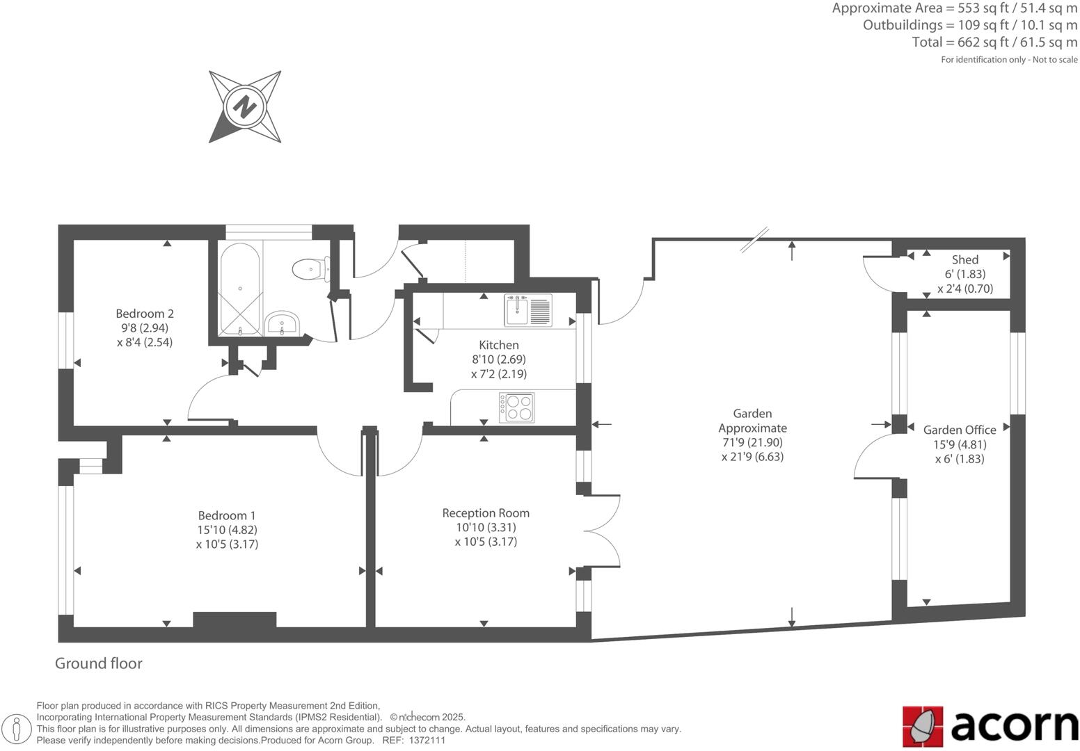
A neatly presented two-bedroom maisonette offering compact, contemporary living with a private garden and useful detached studio. At approximately 550 sq ft, the layout is well considered with a bright living room, separate modern kitchen and two double bedrooms. The studio outbuilding adds flexible space for a home office, gym or storage.
Practical details suit buyers seeking a low-maintenance starter home: a long lease (around 161 years remaining), off-street parking, mains gas central heating and double glazing. Council Tax band B is inexpensive and transport links are good, making commutes straightforward for professionals or first-time buyers.
Be clear about limitations: the flat is small and sits within an older solid-brick building likely with limited wall insulation, so heating costs and thermal comfort could be higher. Broadband speeds are average. The surrounding area scores high on deprivation indices, although local schools are generally rated Good and neighbourhood amenities are plentiful.
Overall this maisonette is a practical, well-finished option for a first purchase or buy-to-let entry, offering immediate move-in condition and scope to improve energy efficiency and personalise the space over time.
2 bedroom house for sale in Moremead Road, LONDON, London, SE6 — £325,000 • 2 bed • 1 bath • 536 ft²
2 bedroom maisonette for sale in Meadowview Road, Catford, SE6 — £325,000 • 2 bed • 1 bath • 859 ft²
2 bedroom maisonette for sale in Alnwick Road, Lee, SE12 — £365,000 • 2 bed • 1 bath • 560 ft²
2 bedroom maisonette for sale in Blythe Hill, Honor Oak, SE6 — £475,000 • 2 bed • 1 bath • 725 ft²
2 bedroom terraced house for sale in 2 Breakspears Road, London, SE4 — £625,000 • 2 bed • 1 bath • 953 ft²
2 bedroom maisonette for sale in Perry HIll, Catford, London, SE6 — £425,000 • 2 bed • 1 bath • 739 ft²


































































































