Compact two-bedroom flat with garage and long lease — ideal for first-time buyers or investors..
Two-bedroom first-floor flat, chain free
Long lease: 167 years remaining
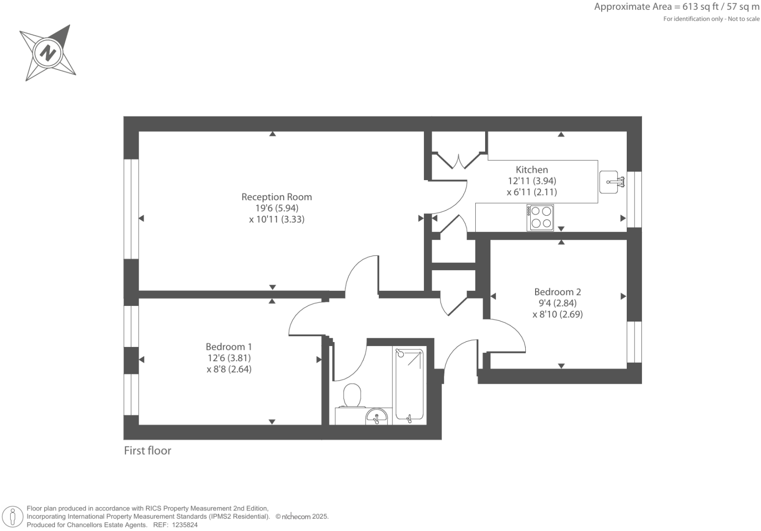
Approx 613 sq ft — overall size small
Garage in block plus unallocated front parking
Service charge £780 pa (below average)
No ground rent; affordable council tax
Post‑war building — age-related maintenance likely
High local crime rate noted
Set on the first floor of a low-rise post‑war block, this two-bedroom Chesham flat offers a compact, move-in ready home with long leasehold security. The apartment is well presented throughout, with a combined lounge/dining room, separate kitchen and bathroom, and double glazing. A garage in a nearby block plus unallocated parking to the front add welcome vehicle and storage options.
The 167 years remaining on the lease and a nil ground rent provide long-term tenure certainty for buyers. Annual service/maintenance of £780 is below average for similar developments, and council tax is described as affordable. The property is offered chain free, which can simplify a quick sale or purchase.
Practical considerations: the overall living area is small (approximately 613 sq ft), so the layout will suit first-time buyers, professionals or investors rather than those needing generous living space. The building dates from the late 1970s/early 1980s and shows typical age-related wear; potential buyers should budget for routine maintenance rather than major works.
Location-wise, the flat sits on Chesham’s south side with convenient access to local amenities and good mobile and broadband connectivity. Family buyers may value nearby well-rated secondary schools, while the local area profile suits professionals and rentable demand, making this a straightforward option for buy-to-let investment.
2 bedroom flat for sale in Chesham, Buckinghamshire, HP5 — £230,000 • 2 bed • 1 bath • 727 ft²
2 bedroom flat for sale in Chesham, Buckinghamshire, HP5 — £325,000 • 2 bed • 1 bath • 785 ft²
2 bedroom flat for sale in Astenway House, Chesham, Buckinghamshire, HP5 — £220,000 • 2 bed • 1 bath • 580 ft²
2 bedroom flat for sale in Severalls Avenue, Chesham, HP5 — £325,000 • 2 bed • 2 bath • 724 ft²
2 bedroom flat for sale in Chesham, Buckinghamshire, HP5 — £250,000 • 2 bed • 1 bath • 548 ft²
2 bedroom flat for sale in Chessmount Rise, Chesham, HP5 — £250,000 • 2 bed • 1 bath • 630 ft²






























































































