**Standout Features:**
- Leasehold term: 125 years from 2004 (106 years remaining)
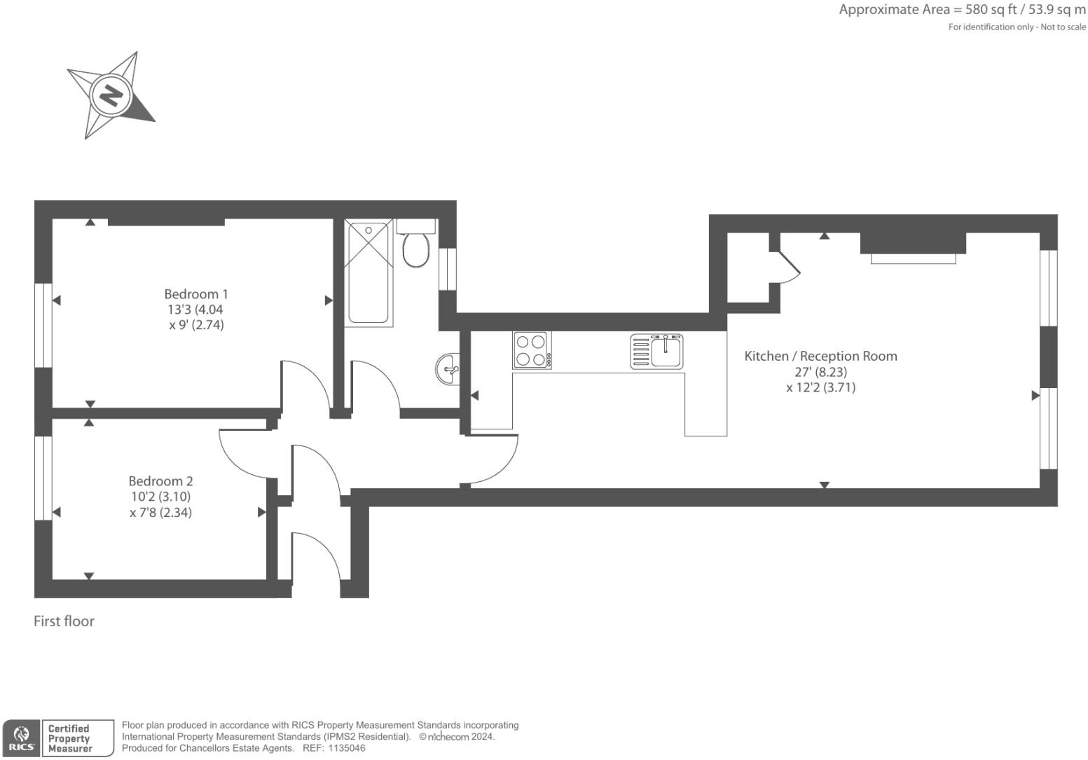
- Two double bedrooms and family bathroom
- Open-plan kitchen/living area; well-presented throughout
- Off-street parking included
- No onward chain provides immediate move-in potential
- Located in vibrant Chesham town center
**Potential Concerns:**
- Smaller overall size (580 sq ft)
- Annual service charge of £2,430 and ground rent of £100
- Electric heating system may require upgrading for efficiency
This charming two-bedroom first-floor flat in the heart of Chesham town center is an excellent opportunity for first-time buyers or investors looking to secure a comfortable and well-located property. The open-plan living space maximizes the feel of a modern urban lifestyle, while off-street parking adds convenience in this bustling area. With no onward chain, you could be moving in before you know it!
Families will appreciate the nearby access to highly-rated schools such as Chesham Grammar School and Dr Challoner's Grammar School, which rank among the top 10% nationally. Enjoy a wealth of local amenities just steps from your door, including cafes, supermarkets, and leisure facilities, perfect for a vibrant community lifestyle.
While the flat is ready to move in, potential buyers may choose to explore energy-efficient upgrades to the electric heating system and consider the ongoing costs related to service charges. Don’t miss the chance to make this inviting flat your new home—properties like this don’t stay on the market for long!
2 bedroom flat for sale in Chesham, Buckinghamshire, HP5 — £220,000 • 2 bed • 1 bath • 656 ft²
2 bedroom flat for sale in Chesham, Buckinghamshire, HP5 — £250,000 • 2 bed • 1 bath • 548 ft²
1 bedroom flat for sale in Chesham, Buckinghamshire, HP5 — £180,000 • 1 bed • 1 bath • 398 ft²
2 bedroom flat for sale in Chesham, Buckinghamshire, HP5 — £350,000 • 2 bed • 1 bath • 1108 ft²
2 bedroom flat for sale in Chesham, Buckinghamshire, HP5 — £325,000 • 2 bed • 1 bath • 785 ft²
2 bedroom flat for sale in Severalls Avenue, Chesham, HP5 — £325,000 • 2 bed • 2 bath • 724 ft²










































