**Standout Features:**
- Substantial freehold property with both hotel and restaurant
- 100-seater restaurant with full kitchen facilities
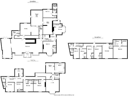
- 12 spacious bedrooms, offering versatile accommodation
- Total area of over 5,000 square feet on a generous 0.3 acres
- Attractive rear garden and ample customer parking
- Located in the historic market town of Spilsby
**Concerns:**
- Above-average crime rate in the local area
- Property may require renovations for full potential optimization
The Church Street property in Spilsby is a unique opportunity for potential buyers looking to invest in a thriving hotel and restaurant business. Spanning over 5,000 square feet, this Victorian-era establishment features a spacious 100-seater restaurant fully equipped with a professional kitchen and a well-established takeaway area. The hotel component boasts 12 comfortable bedrooms, making it attractive for both short and long-term stays, perfect for capitalizing on local tourism.
Situated in a vibrant village environment, the property benefits from a strong footfall, aided by nearby amenities and a convenient parking area that accommodates over 20 vehicles. Beyond the indoor spaces, the enchanting rear garden adds charm, presenting outdoor options for dining or events. With the local market showing promise, this fully operational business presents a profitable venture, although prospective buyers should be mindful of the above-average crime rate in the area and any required renovations for future growth.
This property is suited for experienced investors or those looking to enter the hospitality sector, offering flexible options for future enhancements. Don't miss this chance to secure a thriving business in a coveted location with immense potential—opportunities like this are unlikely to last long!
12 bedroom hotel for sale in Church Street, Spilsby, Lincolnshire, PE23 5EF, PE23 — £550,000 • 12 bed • 1 bath • 5034 ft²
Commercial property for sale in Eastgate, Louth, LN11 — £375,000 • 1 bed • 1 bath • 1023 ft²
Restaurant for sale in The Red Lion Inn, Skegness Road,
Partney, Spilsby, PE23 4PG, PE23 — £650,000 • 1 bed • 1 bath • 2394 ft²
2 bedroom link detached house for sale in Bridge Street, Horncastle, LN9 — £595,000 • 2 bed • 1 bath • 5535 ft²
15 bedroom detached house for sale in Hundleby Road, Spilsby, PE23 — £600,000 • 15 bed • 4 bath • 4945 ft²
6 bedroom detached house for sale in High Street, Wainfleet, SKEGNESS, PE24 — £350,000 • 6 bed • 6 bath • 4242 ft²






















































































































