Compact home with garden, parking and a sizeable separate office space.
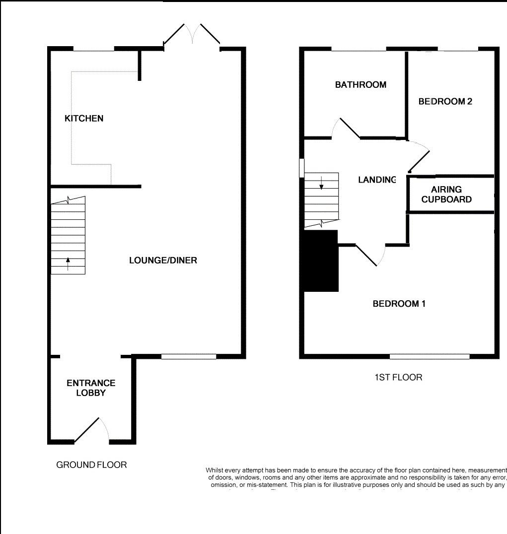
- Two bedrooms, one family bathroom, approximately 614 sq ft
- Generous paved rear garden with dedicated seating area
- Large detached home office with direct garden access
- Allocated off-street parking accessed via rear gate
- EPC C, mains gas boiler and radiators, double glazing
- Small overall footprint; second bedroom is compact
- Freehold, Council Tax Band C, no flood risk
- Unknown double-glazing install date; typical 1980s maintenance
A compact, well-presented two-bedroom end-of-terrace in Alphington offering practical living and outdoor space. The property benefits from a generous paved rear garden and a large detached home office, useful for remote working or as flexible storage. Off-street allocated parking and direct rear access make day-to-day life convenient.
Internally the layout is straightforward: a medium living room, kitchen/diner with double doors to the garden, two bedrooms and a family bathroom. The second bedroom is small and the overall footprint is modest at about 614 sq ft, so the house suits first-time buyers, couples or investors seeking a low-maintenance let.
Built in the 1980s with double glazing and gas central heating, the home is efficient (EPC C) and mostly move-in ready. There are no flood risks, mobile signal and broadband speeds are strong, and local schools and amenities are within easy reach. Council Tax Band C and freehold tenure add to the practical appeal.
Important considerations: the property sits on a small plot and offers limited indoor space; the smaller second bedroom restricts flexibility. The double glazing install date is unknown and there may be future maintenance needs typical of a 1980s build. Viewings will suit buyers prioritising location, outdoor space and a separate home office over large internal rooms.
3 bedroom terraced house for sale in Canon Way, Exeter, Devon, EX2 — £240,000 • 3 bed • 1 bath • 698 ft²
2 bedroom terraced house for sale in Church Road, Alphington, EX2 — £300,000 • 2 bed • 1 bath • 677 ft²
3 bedroom end of terrace house for sale in Midway Terrace, Alphington, EX2 — £300,000 • 3 bed • 2 bath • 528 ft²
3 bedroom end of terrace house for sale in Church Road, Alphington, EX2 — £350,000 • 3 bed • 1 bath • 918 ft²
4 bedroom detached house for sale in Clapperbrook Lane, Alphington, EX2 — £725,000 • 4 bed • 2 bath • 2402 ft²
3 bedroom semi-detached house for sale in Mandrake Road, Alphington, EX2 — £300,000 • 3 bed • 1 bath • 883 ft²


















































































