Good-size rear garden and clear scope for modernisation and energy upgrades.
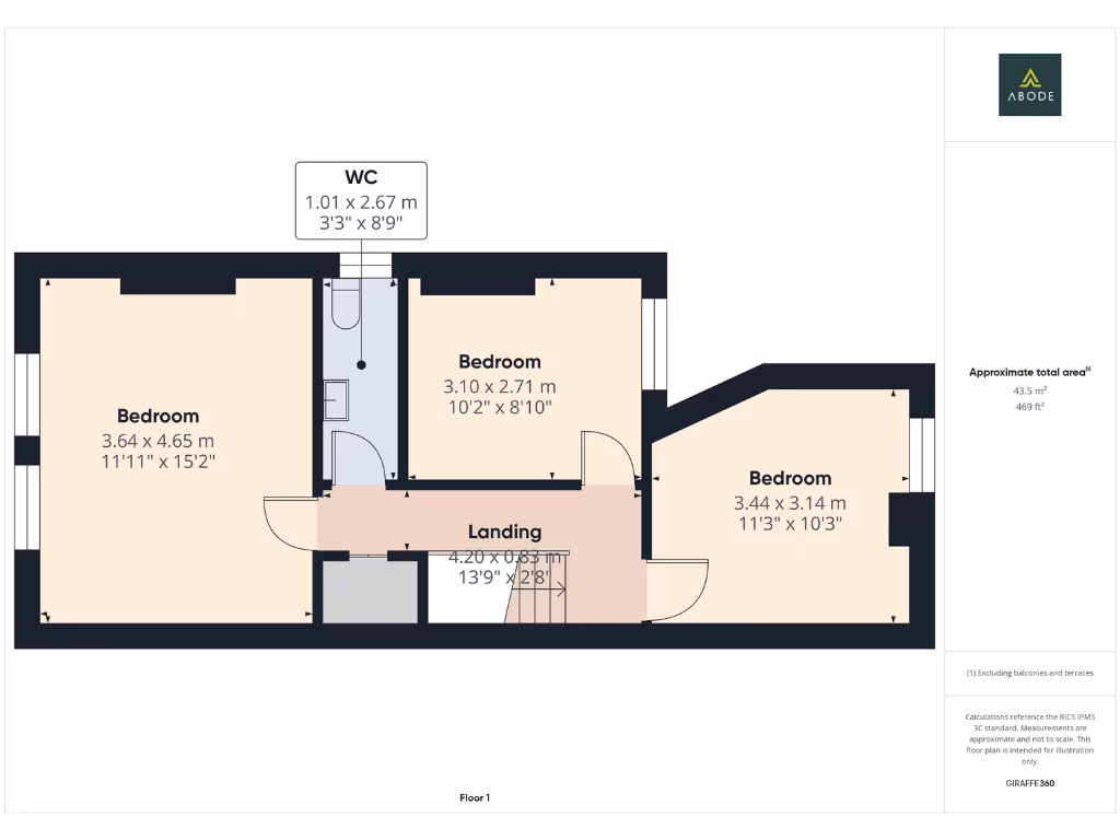
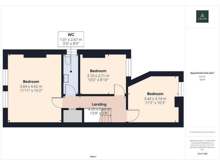
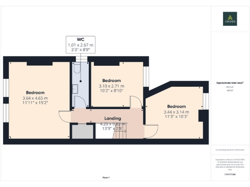
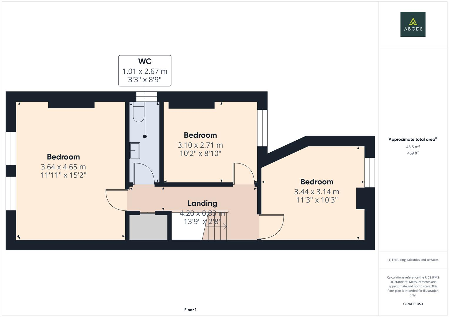
Three bedrooms with separate WC on the first floor
This three-bedroom semi-detached home on Hartshorne Road offers straightforward family living with genuine scope to modernise. The layout includes a hall, two reception rooms, kitchen with pantry, ground-floor bathroom and a separate first-floor WC — practical for busy households. The property is freehold and benefits from a good-size rear garden and side gated access, useful for children’s play, pets or garden projects.
Built circa early 20th century with solid brick walls and uPVC double glazing, the house is presented in serviceable condition but would reward cosmetic updating and energy-efficiency improvements. The existing gas boiler and radiator system provides reliable heating, though the solid walls appear uninsulated and double-glazing installation date is unknown, so buyers should expect potential costs to improve thermal performance.
Location is convenient for everyday needs: local shops, doctors, a community centre and bus services are nearby, with quick road links onto the A511/A514. Neighbourhood indicators show an affluent, self-sufficient retirement catchment nearby but the immediate area suits families seeking space and practicality rather than luxury finishes.
Practical buyers — families or investors looking for a straightforward rental — will appreciate the affordable council tax and clear refurbishment potential. Material drawbacks are honest: cosmetic modernisation needed, likely wall insulation work, and possible traffic noise from nearby main roads. An internal inspection is advised to confirm room sizes and services before committing.
3 bedroom semi-detached house for sale in Woodville Road, Hartshorne, Swadlincote, DE11 — £200,000 • 3 bed • 1 bath • 918 ft²
3 bedroom end of terrace house for sale in Northfield Road, Burton-On-Trent, DE13 — £170,000 • 3 bed • 1 bath • 689 ft²
3 bedroom semi-detached house for sale in Tower Road, Hartshorne, Swadlincote, Derbyshire, DE11 — £220,000 • 3 bed • 1 bath • 846 ft²
3 bedroom end of terrace house for sale in School Street, Church Gresley, Swadlincote, DE11 — £147,500 • 3 bed • 1 bath • 732 ft²
3 bedroom detached house for sale in Kensington Road, Winshill, DE15 — £250,000 • 3 bed • 1 bath • 1301 ft²
3 bedroom terraced house for sale in Horninglow Road, Burton-on-Trent, DE14 — £130,000 • 3 bed • 1 bath • 1034 ft²


















































































































































