Spacious family layout with large driveway and generous rear garden.
Extended three-bedroom semi-detached family home with garden room
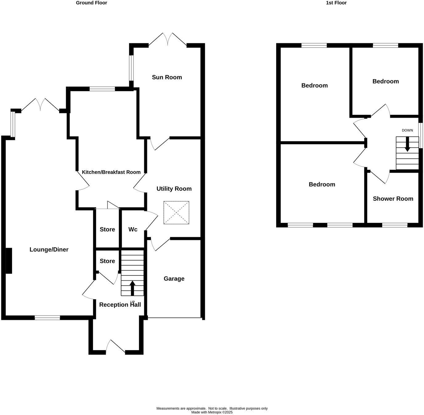
This extended three-bedroom semi-detached house in Wall Heath village provides a spacious, family-focused layout across about 1,093 sq ft. The full-depth lounge with dining area, extended kitchen, separate study/utility and a garden room create flexible living space for daily family life and home working. A large block-paved driveway, single garage and a generous, well-kept rear garden are practical extras for parking, storage and outdoor play.
The home benefits from mains gas central heating, UPVC double glazing and a recently refitted shower room, offering a comfortable, low-maintenance base. Maidensbridge Primary and other well-rated schools are close by, and village shops and local bus links make routine journeys straightforward. The property sits in an affluent, low-crime area with fast broadband and average mobile signal.
Constructed in the 1950s–1960s and built with a filled cavity, the house is broadly well presented but is an average-sized plot overall. The garage is modest in width and the downstairs layout includes a small ground-floor WC rather than a full bathroom. EPC C and Council Tax Band C reflect reasonable running costs.
This home will suit growing families seeking a comfortable, ready-to-live-in house with scope to personalise. Buyers wanting larger bedrooms or a wider garage should note the existing room sizes and configuration before viewing. Freehold tenure and straightforward mains services simplify purchase and occupation.
3 bedroom semi-detached house for sale in Albert Street, Wall Heath, DY6 0NA, DY6 — £330,000 • 3 bed • 1 bath • 1078 ft²
3 bedroom semi-detached house for sale in WALL HEATH VILLAGE, Holcroft Road, DY6 — £335,000 • 3 bed • 2 bath • 1247 ft²
3 bedroom semi-detached house for sale in Heathbrook Avenue, Wall Heath, DY6 — £335,000 • 3 bed • 1 bath • 1006 ft²
3 bedroom semi-detached house for sale in Oak Park Road, Wordsley, Stourbridge, DY8 5YJ, DY8 — £299,950 • 3 bed • 1 bath • 905 ft²
4 bedroom semi-detached house for sale in Albion Street, Wall Heath Village, Kingswinford, DY6 — £279,500 • 4 bed • 1 bath • 1162 ft²
3 bedroom semi-detached house for sale in KINGSWINFORD, Rangeways Road, DY6 — £265,000 • 3 bed • 1 bath • 1068 ft²










































































































