Vacant freehold with garden and clear refurbishment potential near major transport hubs.
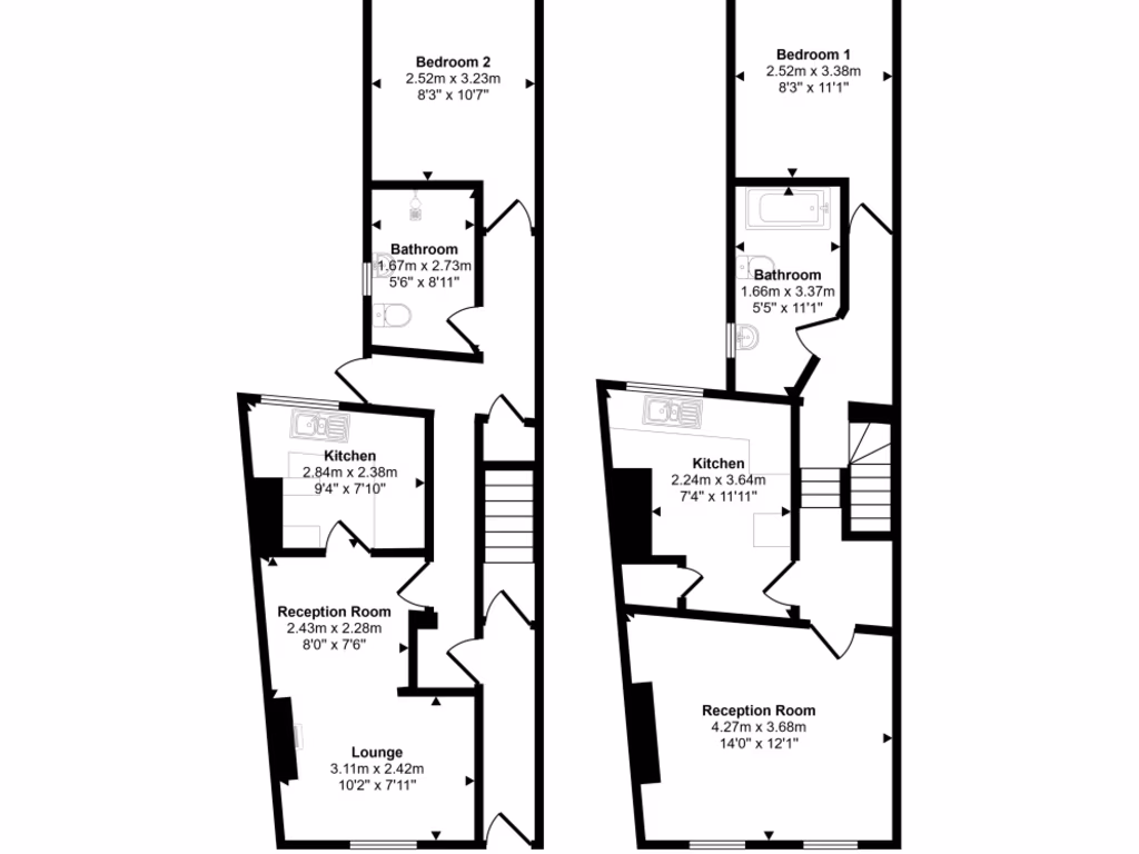
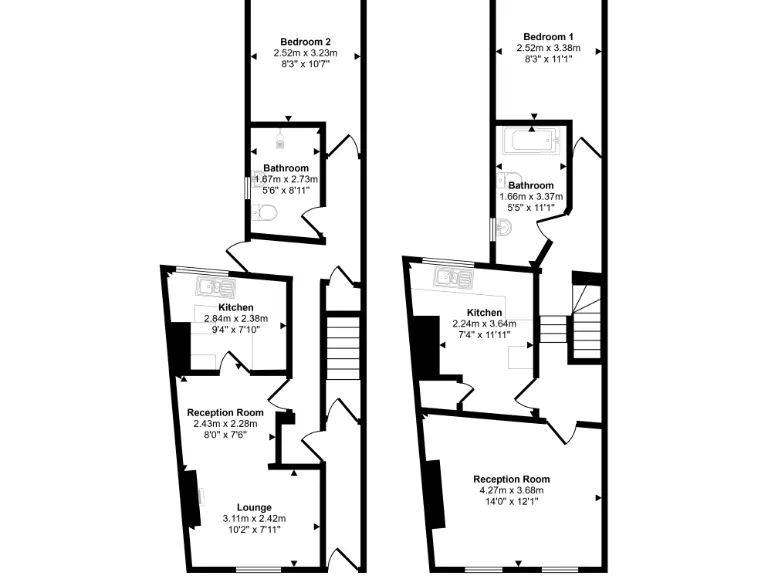
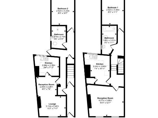
Two self-contained one-bedroom flats over two storeys
A two-storey mid-terrace arranged as two self-contained one-bedroom flats, offered vacant and freehold. The building retains Victorian period features and benefits from a private rear garden, high ceilings and good natural light — all at a scale that suits conversion, reconfiguration or letting as separate units.
The property requires comprehensive refurbishment throughout, offering scope for capital uplift through renovation, reconfiguration or an extension subject to requisite consents. Its central SE1 location sits within easy walking distance of London Bridge, Borough and Bermondsey stations, giving strong transport links and fast broadband — attractive for lettings or resale in the rental-driven central London market.
Buyers should note material drawbacks plainly: the building is in need of renovation and will require investment to bring it to modern standards. The wider area records higher crime levels and socioeconomic deprivation, which may affect tenant profiles and yields. Any development or extension plans would need planning consent and building regulations approval.
For an investor or developer comfortable with a hands-on project, this vacant freehold offers clear upside through refurbishment, rental optimisation or sensitive redevelopment. The property will be sold at auction on 24 November 2025; interested parties should review the legal pack and factor refurbishment costs and local constraints into their bids.
3 bedroom block of apartments for sale in 7A and 7B St Stephens Grove, Lewisham, London, SE13 5AJ, SE13 — £650,000 • 3 bed • 1 bath
5 bedroom block of apartments for sale in Flats A-C, 21 Eastdown Park, Lewisham, London, SE13 5HU, SE13 — £700,000 • 5 bed • 1 bath
4 bedroom terraced house for sale in Brandon Street, London, SE17 1AL, SE17 — £675,000 • 4 bed • 3 bath • 1383 ft²
1 bedroom flat for sale in Flat B 164 Coldharbour Lane, London, SE5 9QH, SE5 — £155,000 • 1 bed • 1 bath
1 bedroom ground floor flat for sale in 76a Meeting House Lane, Peckham, London SE15 2TX, SE15 — £270,000 • 1 bed • 1 bath
2 bedroom house for sale in Wesley Close, London, SE17 — £475,000 • 2 bed • 1 bath • 846 ft²






































































