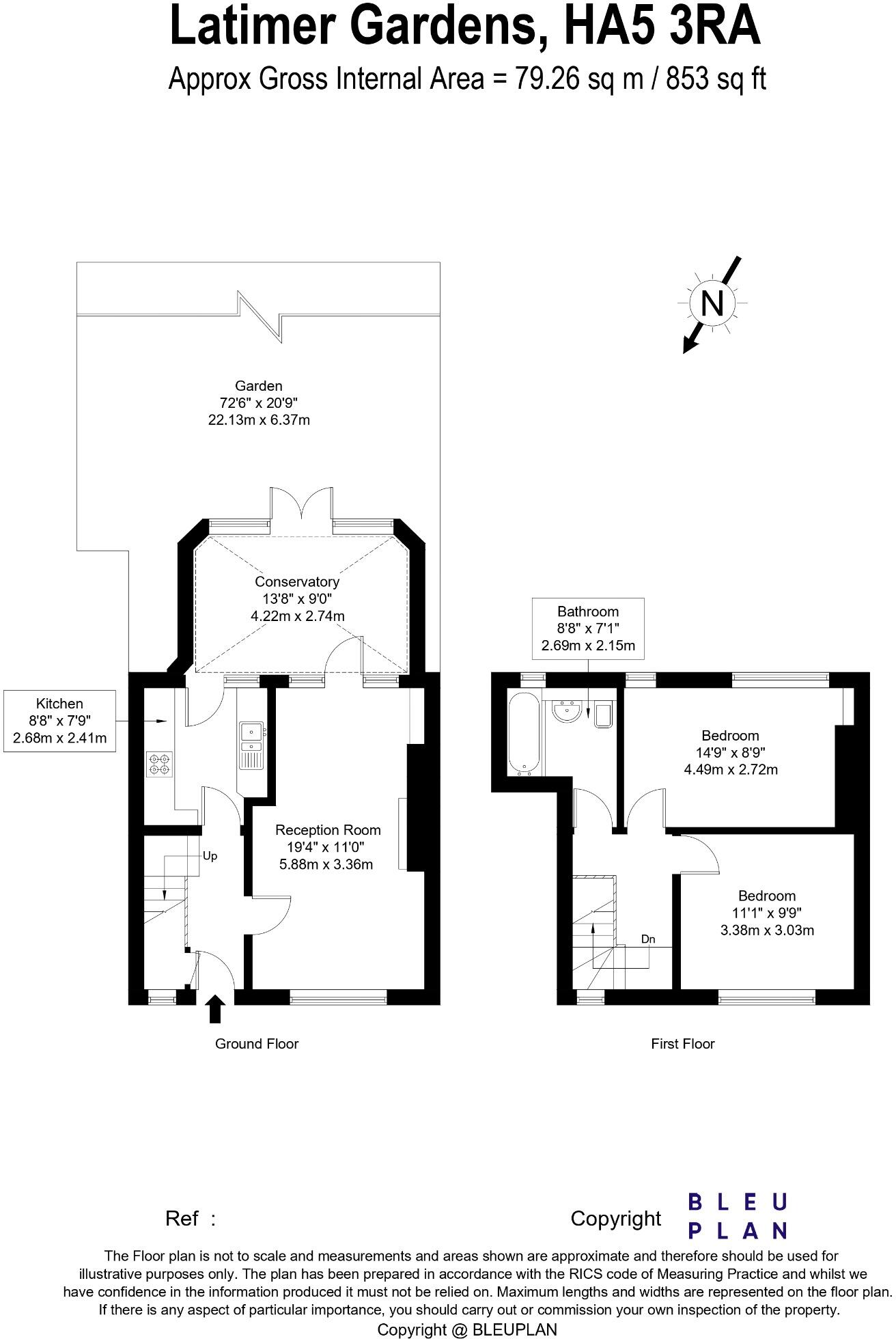
Chain-free family house with secluded south-facing garden and conservatory.
Two double bedrooms with family bathroom upstairs
This mid-20th-century terraced house offers a practical family layout across two floors, with two double bedrooms and generous reception space. The bright living room and connecting conservatory increase usable living space, while a south-facing private garden with mature planting provides good outdoor privacy and sunshine. Chain-free freehold tenure and a location close to Pinner Wood School, local parks and commuter links add clear family and resale appeal.
The property is presented in largely sale-ready condition but is dated in places: conservatory frames show wear and the exterior would benefit from redecoration and garden pruning to improve kerb appeal. Internally the accommodation is tidy but cosmetic modernisation would maximise value — buyers should expect updating rather than a full refurbishment.
Practical positives include integrated kitchen appliances, decent storage, a straightforward layout suitable for ground-floor reconfiguration or potential extensions (subject to planning), and low flood and crime risk. This home suits first-time buyers, young families looking for proximity to outstanding primary schooling, or investors seeking a straightforward rental proposition with modest improvement potential.
2 bedroom terraced house for sale in Edinburgh Close, Pinner, HA5 — £500,000 • 2 bed • 1 bath • 642 ft²
2 bedroom end of terrace house for sale in Tudor Close, Pinner, HA5 — £525,000 • 2 bed • 1 bath • 758 ft²
2 bedroom terraced house for sale in Rickmansworth Road, Pinner, HA5 — £450,000 • 2 bed • 1 bath • 798 ft²
3 bedroom semi-detached house for sale in Fore Street, Pinner, HA5 — £725,000 • 3 bed • 1 bath • 1147 ft²
2 bedroom terraced house for sale in Nursery Road, Pinner, HA5 — £420,000 • 2 bed • 1 bath
3 bedroom semi-detached house for sale in Pinner Hill Road, Pinner, HA5 — £775,000 • 3 bed • 1 bath • 1296 ft²


































































