PR3 5DQ - Land for sale in Land Adjacent To 639, Garstang Road, Barto…

View on Property Piper

Land for sale in Land Adjacent To 639, Garstang Road, Barton, Near Preston / Garstang, Lancashire, PR3

Summary - 639 GARSTANG ROAD, PRESTON, PRESTON PR3 5DQ

1 bed 1 bath Land

0.61 acres with consent for four single‑storey bungalows in a well‑connected village setting.
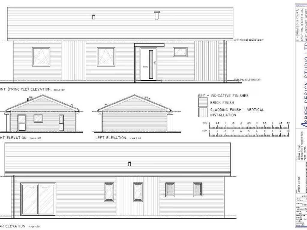
Planning permission March 2024 for 4 single‑storey bungalows
Approx. 0.61 acres (site area ~0.24 hectares)
Fronts onto A6/Garstang Road — excellent links, potential traffic noise
L‑shaped plot to side and rear of existing premises
Permission includes increased parking; full details to be agreed
Suitable for prefabricated bungalows, gated private access proposed
Tenure currently unknown — buyer to verify legal/title details
Close to high‑performing primary and secondary schools
A rare land parcel of approximately 0.61 acres with planning permission (March 2024) to build four single‑storey bungalows. The site is L‑shaped, positioned to the side and rear of existing mixed‑use premises and fronts onto Garstang Road (A6), offering excellent transport links into Preston and Garstang.

Permission covers four prefabricated, single‑storey homes and an increase in car parking associated with 639 Garstang Road; final parking and access details remain to be agreed. The plot lends itself to a small gated community with private access, attractive for investors, downsizers or a retirement‑living scheme.

Key benefits include proximity to high‑performing primary and secondary schools, reliable mobile signal, and a very affluent local area. Potential drawbacks: the plot fronts a busy arterial road (A6) so traffic noise is possible, and tenure details are currently unknown. Any purchaser should confirm service connections and final planning conditions before exchange.

Property Details

Brochure Descriptions

Image Descriptions

Textual Property Features

Target Audience

AI Tags

Detected Visual Features

Nearby Schools

Nearest Bars And Restaurants

,,,,}

Nearest General Shops

,,}

Nearest Grocery shops

,,}

Nearest Supermarkets

,,}

Nearest Religious buildings

,,}

Nearest Medical buildings

,,,}

Nearest Leisure Facilities

,,,,}

Nearest Tourist attractions

,,}

Nearest Train stations

,,,,}

Nearest Bus stations and stops

,,,,}

Nearest Hotels

,,}

Tags

Local Market Stats

Similar Properties

Meta

High Res Images

Compatible Images

Low res Images

Thumbnails

Raw Images