Two double ensuites, garage, and central location — ideal for commuters or downsizers.
Two double bedrooms, both with ensuite bathrooms
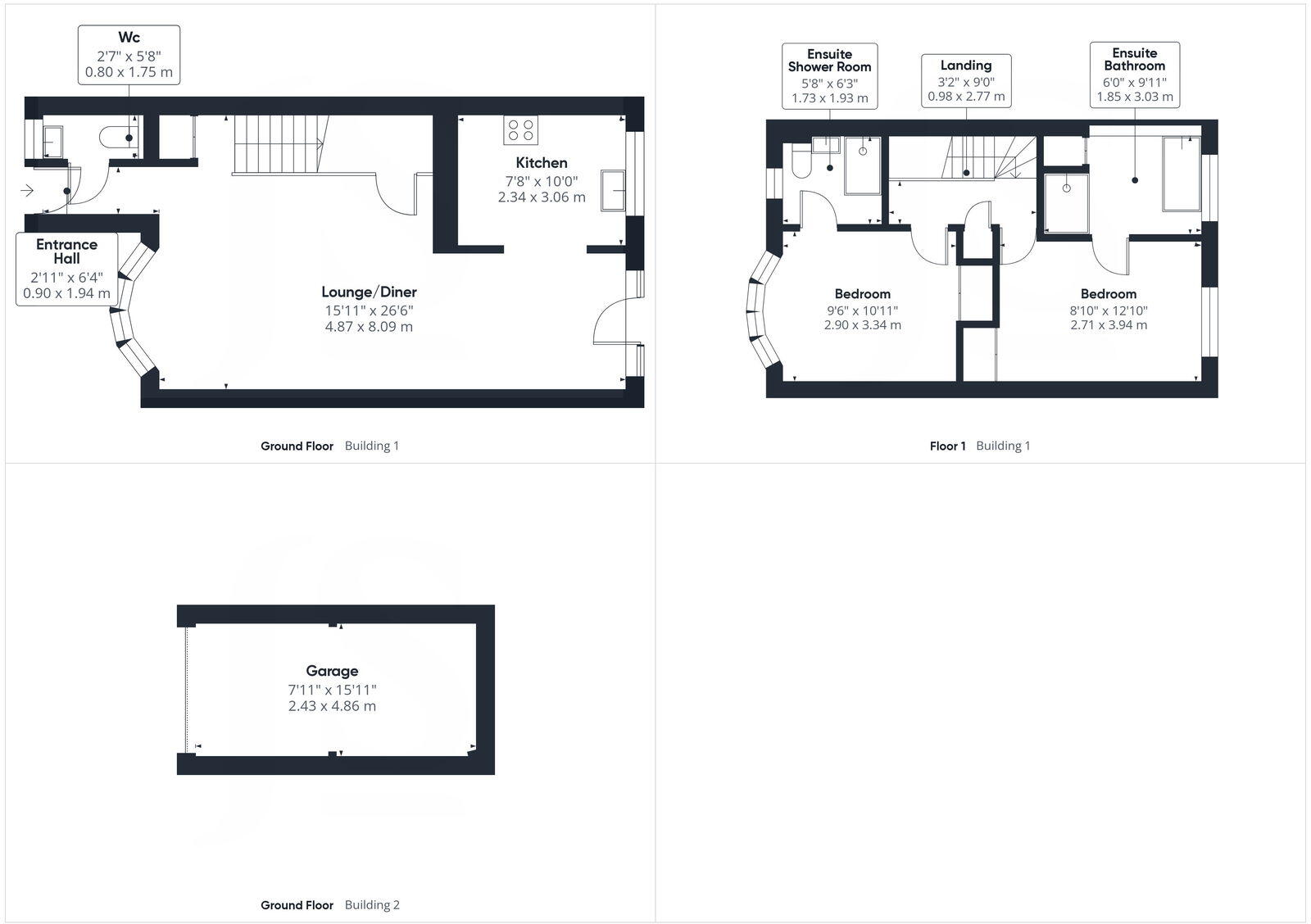
Situated in a quiet cul-de-sac just under half a mile from Shoreham mainline station and the High Street, this reconfigured mid-terrace house offers a well-balanced layout and easy daily living. The ground floor features a dual-aspect open lounge/diner, a modern fitted kitchen and a convenient ground-floor WC — practical for family life or commuter routines.
Upstairs there are two double bedrooms, each with its own ensuite; the principal bedroom benefits from a contemporary ensuite with a freestanding bath and separate shower, giving a hotel-like feel. The property extends to about 926 sq ft, is freehold and includes a garage in a nearby compound — useful off-street parking in this central location.
Practical attributes include mains gas central heating, double glazing (installation date unknown) and a low annual service charge of approximately £200 for shared garden maintenance. The area is very affluent with very low crime and excellent mobile signal, making it an attractive, secure environment.
Notable considerations: the plot is modest and the rear garden is small, broadband speeds are reported slow, and the house was built c.1976–82 with cavity walls showing partial insulation (assumed). These factors mean some buyers may want to budget for insulation or broadband upgrades.
4 bedroom terraced house for sale in Bluebird Close, Shoreham by Sea, BN43 — £460,000 • 4 bed • 2 bath • 1335 ft²
3 bedroom terraced house for sale in Northbourne Close, Shoreham by Sea, BN43 — £340,000 • 3 bed • 1 bath • 840 ft²
3 bedroom semi-detached house for sale in Rope Walk, Shoreham-By-Sea, BN43 — £425,000 • 3 bed • 1 bath • 844 ft²
3 bedroom house for sale in Newtimber Gardens, Shoreham-By-Sea, BN43 — £400,000 • 3 bed • 1 bath • 883 ft²
2 bedroom semi-detached house for sale in Upper Shoreham Road, Shoreham-by-Sea, BN43 — £399,950 • 2 bed • 2 bath • 913 ft²
3 bedroom house for sale in Greenways Crescent, Shoreham-By-Sea, BN43 — £550,000 • 3 bed • 2 bath • 1092 ft²






























































































