Compact modern maisonette with balcony, long lease and no chain.
Allocated off-street parking space included
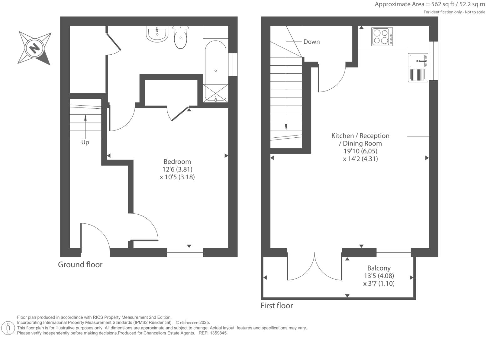
A compact, modern one-bedroom split-level maisonette ideal for a first-time buyer or investor seeking straightforward town-centre living. The apartment sits within a Tudor Revival-style block built c.2003–2006 and benefits from double glazing, electric underfloor heating and a small west-facing balcony overlooking communal gardens. The layout provides an open-plan kitchen/living area, a bedroom with built-in cupboard and a bathroom with an airing cupboard.
Practical highlights include allocated off-street parking, a long lease (125 years from 24/06/2006 — c.106 years remaining) and no onward chain, which can simplify a quick purchase. The property is around 0.9 miles from High Wycombe train station and the Eden Centre, with local shops, leisure facilities and good broadband and mobile signal nearby.
Buyers should note the location records higher-than-average local crime levels; viewings will show whether the communal setting and allocated parking meet personal security expectations. The apartment’s 562 sq ft size is average and best suited to single occupancy or couples; it offers limited scope for major extension but good potential for cosmetic updating. Council tax band is inexpensive and there is no flood risk recorded.
1 bedroom apartment for sale in Wellesbourne Crescent, High Wycombe, HP13 — £199,950 • 1 bed • 1 bath • 481 ft²
1 bedroom flat for sale in High Wycombe, West Wycombe, Buckinghamshire, HP12 — £190,000 • 1 bed • 1 bath • 558 ft²
1 bedroom maisonette for sale in Lower Furney Close, High Wycombe, Buckinghamshire, HP13 — £180,000 • 1 bed • 1 bath • 455 ft²
1 bedroom flat for sale in Coopers Rise, High Wycombe, HP13 — £189,950 • 1 bed • 1 bath • 550 ft²
2 bedroom apartment for sale in West Wycombe Road, High Wycombe, Buckinghamshire, HP12 — £240,000 • 2 bed • 1 bath • 506 ft²
1 bedroom maisonette for sale in Totteridge Road, High Wycombe, HP13 — £200,000 • 1 bed • 1 bath • 415 ft²














































































