W11 3QY - 4 bedroom flat for sale in Holland Park Avenue, London, W11

View on Property Piper

4 bedroom flat for sale in Holland Park Avenue, London, W11

Summary - 56 HOLLAND PARK AVENUE, LONDON W11 3QY

4 bed 2 bath Flat

Large four-bedroom triplex with roof terrace in prime Holland Park location.
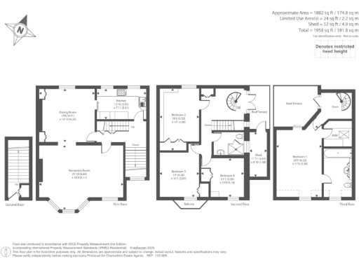
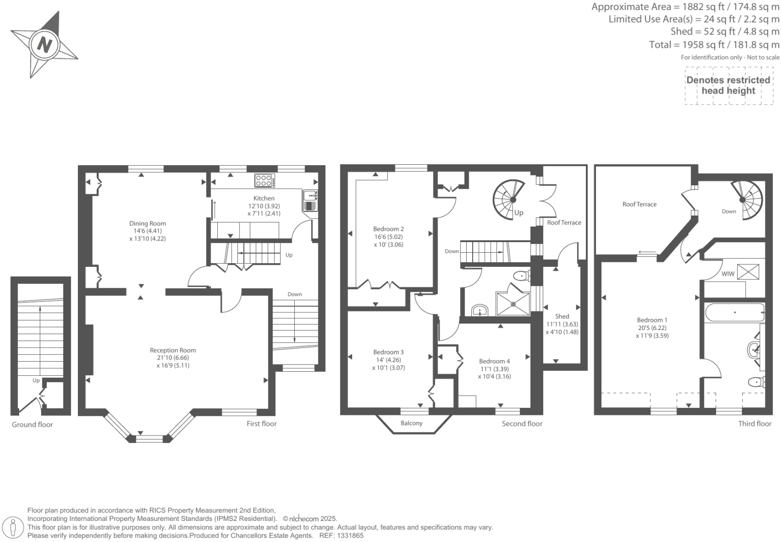
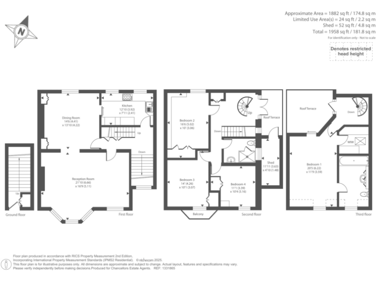
Nearly 1,958 sqft lateral triplex with high ceilings
A spacious, newly renovated four-bedroom triplex on Holland Park Avenue offering nearly 1,960 sqft of lateral living over three floors. The apartment sits set back from the road with a private entrance, high ceilings and large traditional windows that deliver abundant natural light. A private roof terrace and several internal storage cupboards add practical outdoor and storage space for family life.

The accommodation includes two bathrooms, an internal rustic staircase linking bedroom levels and gas central heating via boiler and radiators. The property is sold as a share of freehold with a long lease (150 years from 1975; approximately 100 years remaining reported). Double glazing is present (installation date unknown).

Location is a strong selling point: quiet, affluent Holland Park Avenue close to Notting Hill Gate amenities, excellent transport links and a range of highly regarded independent and state schools. Buyers should note material drawbacks plainly: the building’s solid-brick construction is assumed to have no cavity insulation, council tax is described as quite expensive, and local crime levels are reported as high. These factors may affect running costs and insurance. Overall, this property suits a family seeking generous period proportions and a prime central location, willing to manage running costs and consider further energy improvements if desired.

Property Details

Image Descriptions

Floorplan Description

Rooms

Textual Property Features

Target Audience

AI Tags

Detected Visual Features

EPC Details

Nearby Schools

Nearest Bars And Restaurants

,,,,}

Nearest General Shops

,,}

Nearest Grocery shops

,,}

Nearest Supermarkets

,,}

Nearest Religious buildings

,,}

Nearest Medical buildings

,,,}

Nearest Airports

,}

Nearest Leisure Facilities

,,,,}

Nearest Tourist attractions

,,}

Nearest Train stations

,,,,}

Nearest Bus stations and stops

,,,,}

Nearest Hotels

,,}

Tags

Local Market Stats

AirBnB Data

Similar Properties

Meta

High Res Images

Compatible Images

Low res Images

Thumbnails

Raw Images

High Res Floorplan Images

Compatible Floorplan Images

Low res Floorplan Images

FloorplanImages Thumbnail

Raw Floorplan Images