Ground-floor one-bedroom with huge private garden and high-spec finish.
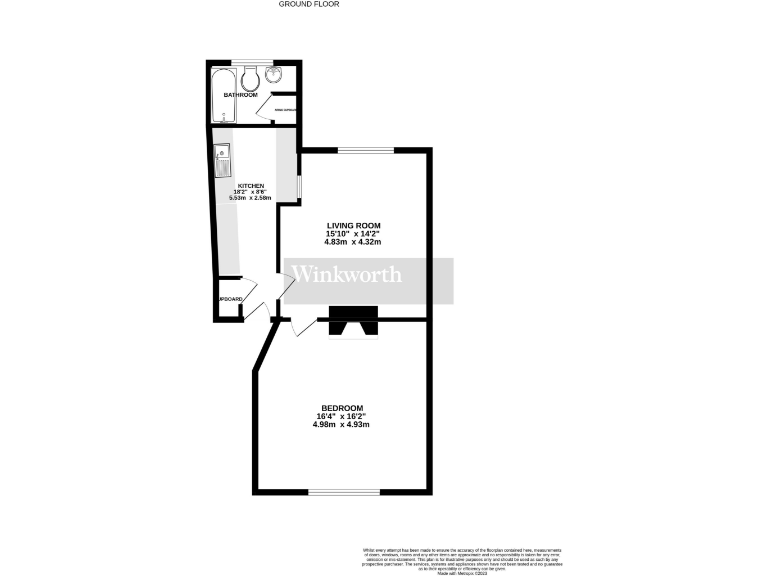
Bright ground-floor apartment with tall living-room window
Private garden over 150ft — fully private to this apartment
Recently renovated kitchen and upgraded bathroom throughout
Sizeable bay-windowed bedroom with room for wardrobes/dressing area
107 years remaining on the lease — property is leasehold
Private off-street parking space at rear of garden
Shared private entrance with one other property
Council Tax Band A; no flood risk; services not independently tested
This bright ground-floor one-bedroom apartment blends period character with modern fittings, offering a surprisingly spacious layout and an exceptional private garden extending over 150ft. High ceilings, a bay-windowed bedroom and a living room with a character fireplace create warmth and charm, while recently fitted kitchen and bathroom bring contemporary convenience.
The apartment has been renovated to a high specification throughout and benefits from private off-street parking at the rear and a dedicated entrance shared with just one other property. The generous bedroom provides space for wardrobes and a dressing area; the large living area is filled with natural light from a tall window overlooking the garden.
Practical points to note: the property is leasehold with 107 years remaining. Services and appliances have not been independently tested. Council Tax is Band A (very cheap), there is no flooding risk and the area is generally very affluent with fast broadband and average local crime levels.
This home will suit a first-time buyer seeking character and outside space without the upkeep of a house — the long private garden is a rare city-suburb advantage and needs to be seen to appreciate its scale.
1 bedroom apartment for sale in Primrose Crescent, Thorpe St Andrew, Norwich, Norfolk, NR7 — £130,000 • 1 bed • 1 bath • 408 ft²
1 bedroom apartment for sale in Norwich, NR1 — £127,500 • 1 bed • 1 bath • 465 ft²
1 bedroom flat for sale in Harvey Lane, Norwich, Norfolk, NR7 — £175,000 • 1 bed • 1 bath • 462 ft²
2 bedroom flat for sale in Bodmin Court, Plumstead Road East, Norwich, NR7 — £170,000 • 2 bed • 1 bath • 678 ft²
1 bedroom apartment for sale in Wilson Road, Norwich, Norfolk, NR1 — £120,000 • 1 bed • 1 bath • 468 ft²
1 bedroom apartment for sale in Gilman Road, Norwich, NR3 — £125,000 • 1 bed • 1 bath • 423 ft²


























































