Turn-key ground-floor home with parking, long lease and integrated appliances.
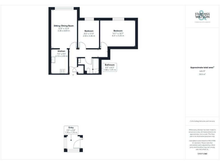
Ground-floor two-bedroom flat, 678 sq ft
This ground-floor two-bedroom apartment in Thorpe St Andrew offers a straightforward, move-in-ready option for first-time buyers or investors. The flat is presented in good condition with gas central heating, double glazing and a practical open-plan sitting/dining room that receives plenty of natural light.
Practical features include off-road parking, secure communal access and a long lease of 103 years, providing ownership stability for the foreseeable future. The fitted kitchen has integrated oven, hob and extractor and there is an easily-maintained family bathroom with shower over bath.
Buyers should note the property is leasehold with an annual service charge of about £1,769.13 and one bathroom serving the two bedrooms. Broadband speeds are average locally, and while the flat is convenient and secure, it lacks the privacy of an upper-floor apartment and has a conventional layout rather than a premium specification.
Overall, this is a sensible, affordable entry-level purchase (or rental investment) in a very affluent, low-crime suburb with good local schools and amenities nearby. The long lease and turnkey condition reduce immediate expenditure, leaving scope for modest updates to add personal style or rental appeal.
2 bedroom flat for sale in Green Court, Thorpe St Andrew, NR7 — £150,000 • 2 bed • 1 bath • 549 ft²
2 bedroom flat for sale in Plantation Drive, Norwich, NR7 — £160,000 • 2 bed • 1 bath • 526 ft²
2 bedroom flat for sale in Craven Court, Crome Road, Norwich, NR3 — £150,000 • 2 bed • 2 bath • 603 ft²
1 bedroom flat for sale in Harvey Lane, Norwich, Norfolk, NR7 — £175,000 • 1 bed • 1 bath • 462 ft²
2 bedroom apartment for sale in The Cumberland, Norwich, NR1 — £160,000 • 2 bed • 1 bath • 539 ft²
2 bedroom flat for sale in Caddow Road, Norwich, NR5 — £160,000 • 2 bed • 2 bath • 570 ft²


























































