GU21 8TG - 3 bedroom terraced house for sale in St. John's, Wokin…

View on Property Piper

3 bedroom terraced house for sale in St. John's, Woking, Surrey, GU21

Summary - 36 LANSDOWN CLOSE WOKING GU21 8TG

3 bed 1 bath Terraced

Newly renovated mid-terrace with garden, garage and excellent primary school nearby..
- Newly renovated throughout, move-in ready
- Open-plan kitchen/diner with modern fitted units
- Generous rear garden, small overall plot
- Garage located in a nearby block (not attached)
- Single bathroom only
- Cavity walls likely uninsulated (assumed) — upgrade potential
- 0.7 miles to St Hugh of Lincoln Primary (Outstanding)
- Approximately 2.9 mile drive to Woking Station
This recently renovated three-bedroom mid-terrace in St Johns offers an easy, turn-key move for a first-time buyer or young family. The open-plan kitchen/diner and modern fittings give a contemporary, low-maintenance feel, while double glazing and mains gas central heating provide everyday comfort.

Outside, a generous rear garden and a garage in a nearby block extend usable space beyond the house footprint — useful for storage, weekend projects or safe bike parking. The property is conveniently placed for St Hugh of Lincoln Primary (0.7 miles) and offers straightforward road access to Woking Station (about a 2.9-mile drive) and local shopping.

Practical points are clear and factual: the plot is small, there is only one bathroom, and the garage is in a block rather than attached. Cavity walls are understood to have been built without insulation (assumed) — insulation upgrades could improve energy efficiency. The sale is offered with no onward chain, which can speed completion for a buyer ready to move in.

Overall this is a compact, well-presented family home in a very affluent area, suited to buyers seeking a ready-made property close to strong primary schooling and commuter links. Budget for minor energy-efficiency or comfort upgrades if desired.

Property Details

Image Descriptions

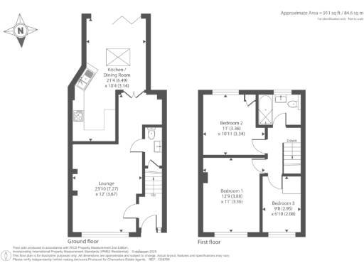
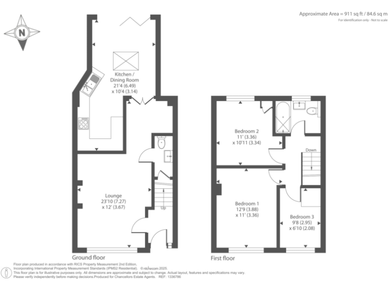
Floorplan Description

Rooms

Textual Property Features

Target Audience

AI Tags

Detected Visual Features

EPC Details

Nearby Schools

Nearest Bars And Restaurants

,,,,}

Nearest General Shops

,,}

Nearest Grocery shops

,,}

Nearest Supermarkets

,,}

Nearest Religious buildings

,,}

Nearest Medical buildings

,,,}

Nearest Airports

,}

Nearest Leisure Facilities

,,,,}

Nearest Tourist attractions

,,}

Nearest Train stations

,,,,}

Nearest Bus stations and stops

,,,,}

Nearest Hotels

,,}

Tags

Local Market Stats

AirBnB Data

Similar Properties

Meta

High Res Images

Compatible Images

Low res Images

Thumbnails

Raw Images

High Res Floorplan Images

Compatible Floorplan Images

Low res Floorplan Images

FloorplanImages Thumbnail

Raw Floorplan Images