**Standout Features:**
- New build, nearing completion with modern design
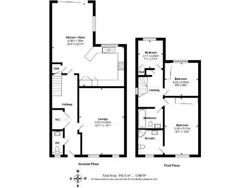
- Spacious 3-bedroom, 2-bathroom detached home
- Open-plan kitchen/dining/family room ideal for entertaining
- Low-maintenance rear garden with wrap-around paved area
- Ample off-road parking for multiple vehicles
- Located in a desirable conservation village, close to amenities
Tucked away in the charming village of Burton, this nearly completed three-bedroom detached home is a modern haven perfectly designed for convenience and comfort. The heart of the house features an impressive open-plan kitchen/dining/family room, ideal for both intimate family meals and larger gatherings. Enjoy luxury appliances, ample storage, and sliding doors leading to a beautifully low-maintenance rear garden—perfect for outdoor enjoyment year-round.
Upstairs, you’ll find a well-proportioned principal bedroom complete with en-suite and built-in wardrobes, accompanied by two additional bedrooms that cater effortlessly to family living or even flexible home office space.
Situated moments away from local amenities—including a primary school, doctors' surgery, and delightful gastro pubs—this residence balances tranquil village life with easy access to the vibrant town of Christchurch and stunning south coast beaches. With off-road parking, fast broadband, and a low-crime environment, this is the ideal family or investment opportunity in a sought-after area. Don’t miss your chance to secure this modern gem; homes like this don’t stay on the market for long!
3 bedroom detached house for sale in Martins Hill Lane, Burton, Christchurch, BH23 — £525,000 • 3 bed • 2 bath • 1211 ft²
3 bedroom detached house for sale in Martins Hill Lane, Burton, Christchurch, Dorset, BH23 — £525,000 • 3 bed • 2 bath • 1200 ft²
3 bedroom detached house for sale in Martins Hill Lane, Burton, Christchurch, Dorset, BH23 — £525,000 • 3 bed • 2 bath • 1300 ft²
3 bedroom detached house for sale in Martins Hill Lane, Burton, Christchurch, Dorset, BH23 — £525,000 • 3 bed • 2 bath • 1139 ft²
3 bedroom detached house for sale in Martins Hill Lane, Burton, Christchurch, Dorset, BH23 — £525,000 • 3 bed • 2 bath • 1200 ft²
3 bedroom detached house for sale in Priory View Road, Burton, CHRISTCHURCH, Dorset, BH23 — £475,000 • 3 bed • 1 bath • 1090 ft²


















