Chain-free modern three-bedroom detached house
Westerly rear garden with patio and lawn
Large off-street driveway parking for several vehicles
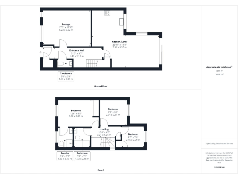
Principal bedroom with ensuite; two further bedrooms with storage
Oil-fired boiler and radiators — consider fuel and running costs
Cavity walls recorded; insulation status unconfirmed (buyers should verify)
Short, level walk to village green, shops and parish church
Some photos virtually staged; view to confirm exact specification
A bright, three-bedroom detached home with a westerly garden, offered chain-free and ready to occupy. The layout suits family life: generous lounge, kitchen/diner to the rear and an ensuite to the principal bedroom. Large off-street parking and a level plot make day-to-day living straightforward.
Practical considerations include oil-fired central heating and cavity walls reported without confirmed insulation levels; buyers should factor these into running-cost and improvement plans. The listing notes some photos have been virtually staged and prospective purchasers should verify specification and finishes on inspection.
Situated in Burton, the house is a short level walk to the village green, local shops and church, and about one mile from Christchurch town centre. Fast broadband, excellent mobile signal, low crime and a very affluent area classification add to everyday convenience and long-term appeal.



































































