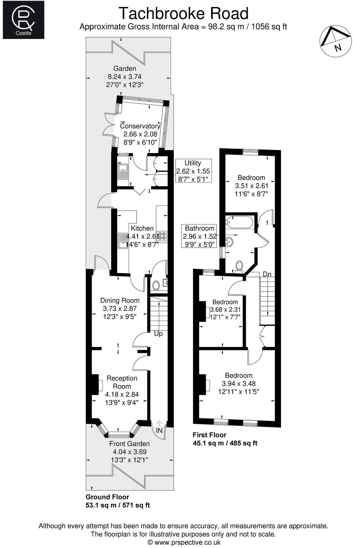
Bay-fronted reception with wood floors and high ceilings
Three bedrooms, principal room approx 12'11" x 11'5"
Modern galley kitchen, separate utility and conservatory
Paved rear garden and front forecourt — small, low-maintenance
Freehold; about 1,050 sq ft over two floors
Area: strong transport and schools, Elizabeth Line nearby
Higher local crime rate and area deprivation — consider security
Solid brick walls with presumed no insulation; glazing install date unknown
This late-Victorian terraced house on Tachbrook Road offers a practical family layout across two floors, with three bedrooms and about 1,050 sq ft of living space. The bay-fronted reception room and timber floors preserve period character, while a modern galley kitchen, separate utility area and conservatory give everyday convenience. A paved rear garden and front forecourt make outdoor maintenance straightforward.
The location is a strong commuter draw: Southall Elizabeth Line station is within easy reach for fast services to central London and Heathrow. Several highly regarded primary and secondary schools are close by, and nearby parks such as Jubilee Park and King George’s Playing Field provide green space for children and weekend leisure.
Be clear-eyed about material negatives. The area records higher crime and is relatively deprived; prospective buyers should consider this for family safety and insurance costs. The plot and garden are small, so outdoor space is limited. The house is solid-brick with no confirmed insulation and the double glazing install date is unknown — there may be scope and cost for further thermal improvements. There is a single bathroom for three bedrooms, which some families may find restrictive.
Overall, this freehold mid-terrace will suit buyers seeking period charm with modernised interiors and excellent transport and school links. It particularly fits families who prioritise location and schooling, or investors targeting long-term rental demand, provided they accept the town-centre trade-offs and possible improvement costs.
3 bedroom terraced house for sale in Tachbrook Road, Southall, UB2 — £540,000 • 3 bed • 1 bath • 1023 ft²
3 bedroom terraced house for sale in Tachbrook Road, Southall, UB2 — £509,950 • 3 bed • 2 bath • 1021 ft²
3 bedroom end of terrace house for sale in Abbotts Road, Southall, UB1 — £690,000 • 3 bed • 2 bath • 2066 ft²
3 bedroom terraced house for sale in Leonard Road, Southall, UB2 — £500,000 • 3 bed • 2 bath • 881 ft²
3 bedroom terraced house for sale in Western Road, Southall, UB2 — £550,000 • 3 bed • 1 bath • 1133 ft²
3 bedroom terraced house for sale in Montague Waye, Southall, UB2 — £525,000 • 3 bed • 1 bath • 1112 ft²


































































