Spacious rural retreat with stables, expansive views and serious scope for improvement.
Approximately 7 acres with four stables and two paddocks
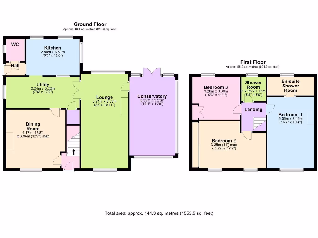
Set within a private gated drive and approximately seven acres, this detached three-bedroom smallholding offers genuine rural living with outlooks across Saddleworth. The house combines traditional stone construction and later improvements — including double glazing added after 2002, engineered wood floors and two multifuel burners — with practical farm outbuildings: four stables, two paddocks and extensive grounds where the current owners have planted around 1,000 trees.
Internally the layout suits family life and small-scale livestock or equestrian use. Ground-floor living includes a country kitchen, utility/breakfast room, dining room and a large lounge opening to a conservatory and Indian stone patios, ideal for outdoor entertaining and enjoying the views. Upstairs there are three good bedrooms (one ensuite) and a fully tiled shower room. Parking is plentiful behind the gated entrance.
There are clear running-cost and maintenance considerations. Heating is by an LPG-fired boiler rather than mains gas, broadband speeds are very slow, and the original sandstone/limestone walls are assumed to be uninsulated — the property currently rates EPC D63 with potential to C74 after improvements. Council Tax sits at band E. These factors should be weighed against the large plot and versatile outbuildings.
This smallholding will appeal to buyers seeking a private rural lifestyle within a short drive of local amenities and good primary schools. It suits those prepared to invest in energy and insulation upgrades, and owners who want productive land and space for horses, smallholding or forestry projects.
2 bedroom terraced house for sale in Bacup Road, Todmorden, West Yorkshire, OL14 — £330,000 • 2 bed • 1 bath • 1790 ft²
3 bedroom semi-detached house for sale in Calderbrook Road, Littleborough, Greater Manchester, OL15 — £795,000 • 3 bed • 1 bath • 900 ft²
Equestrian facility for sale in Wolstenholme Fold, Norden, Rochdale, OL11 — £795,000 • 3 bed • 2 bath • 2943 ft²
4 bedroom semi-detached house for sale in Shelfield Lane, Southfield, Burnley, Lancashire, BB10 — £650,000 • 4 bed • 1 bath • 3488 ft²
4 bedroom barn conversion for sale in 2 Acre View, Whitegates lane Strinesdale Saddleworth, OL4 — £879,000 • 4 bed • 2 bath • 1920 ft²
6 bedroom detached house for sale in Rock Farm, Standedge, Delph, Saddleworth, OL3 — £1,000,000 • 6 bed • 3 bath • 1582 ft²


























































































































































































































