Large gated plot near Wimbledon Common with design team ready to proceed.
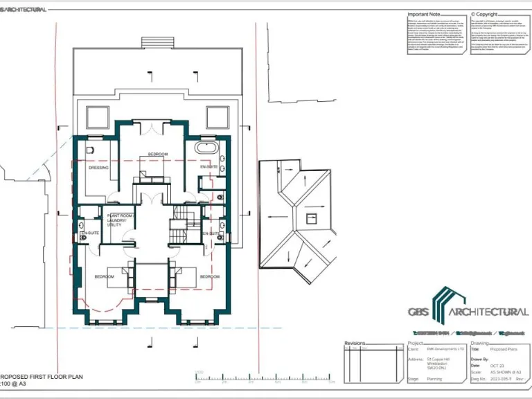
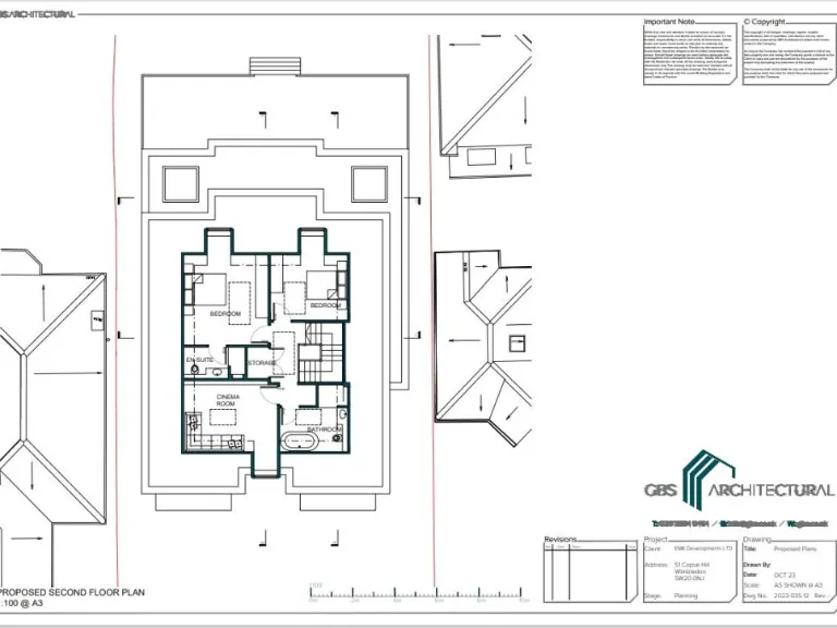
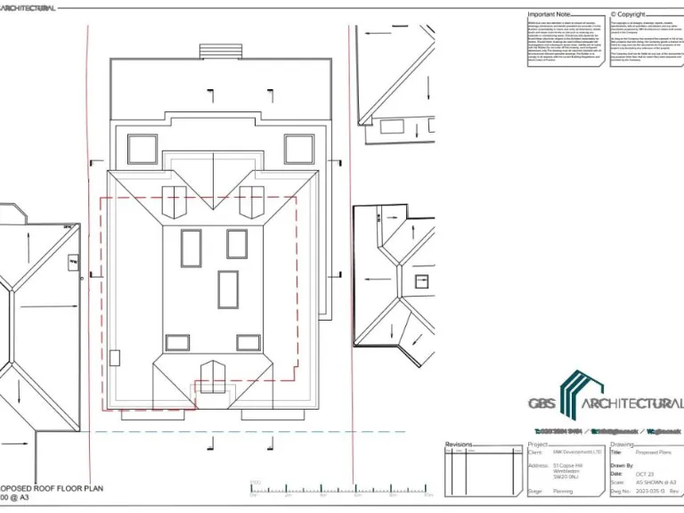
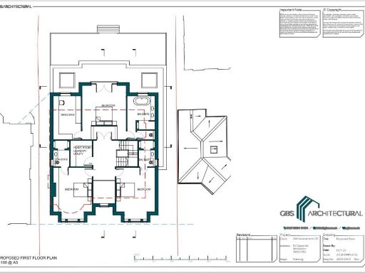
Pre-application approval secured for 5,500 sq ft replacement dwelling
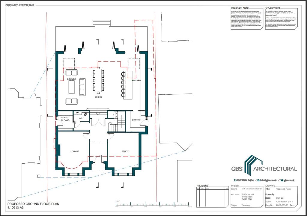
A rare Copse Hill opportunity combining generous living space with clear redevelopment potential. Set behind a gated drive, this detached six-bedroom house sits on a large plot with a mature garden exceeding 135ft and off-street parking to a double-length garage. The owner has secured pre-application approval for a 5,500 sq ft replacement dwelling and has a design-and-build team ready to proceed, allowing a purchaser to accelerate planning and construction.
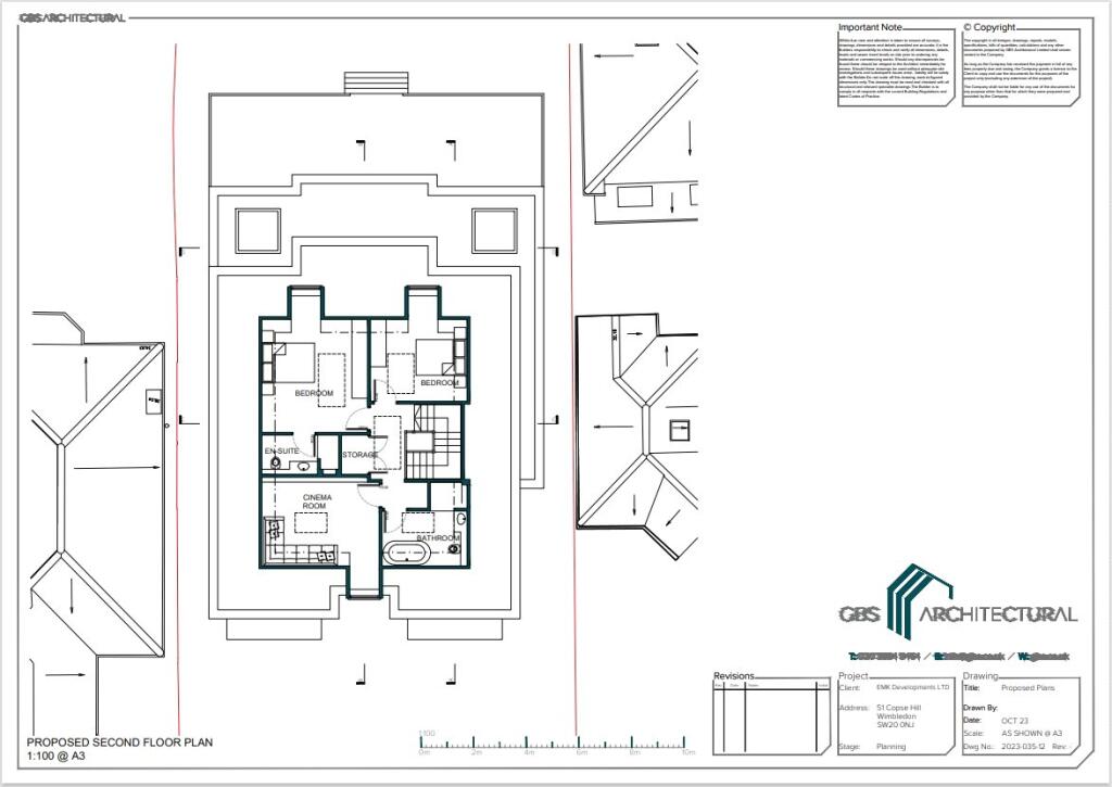
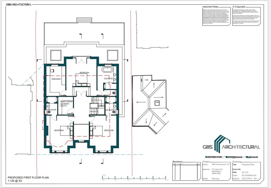
Internally the house offers substantial family accommodation across three floors: flexible reception spaces, a kitchen/breakfast room opening to the garden, a ground-floor study, and six bedrooms including a principal suite and two en-suites. Large windows and traditional 1940s brick styling give the house character while modern elements such as double glazing and underfloor heating are already installed in parts.
This location is a major strength: walking distance to Wimbledon Common, close to Wimbledon Village and Raynes Park rail services, and near highly regarded schools including King’s College School. The area is very affluent with low crime and fast broadband, supporting both family lifestyle and premium redevelopment values.
Buyers should be clear-eyed about work required. The property is presented as a renovation or demolition-and-rebuild project to maximise the approved footprint; significant project management, build costs and council fees will apply. Council tax is described as quite expensive. For purchasers seeking a turnkey home without major works, this will not be suitable, but for those looking to create a bespoke, large family house in a prime SW20 location this plot and consent represent a major advantage.
6 bedroom detached house for sale in Copse Hill, Wimbledon, London, SW20 — £2,950,000 • 6 bed • 4 bath • 3425 ft²
5 bedroom detached house for sale in Copse Hill, London, SW20 — £2,150,000 • 5 bed • 4 bath • 2714 ft²
5 bedroom house for sale in Lindisfarne Road, Wimbledon, SW20 — £2,300,000 • 5 bed • 2 bath • 2410 ft²
5 bedroom detached house for sale in Copse Hill, Wimbledon, London, SW20 — £2,650,000 • 5 bed • 4 bath • 2543 ft²
5 bedroom detached house for sale in Grange Park Place, Wimbledon, London, SW20 — £3,750,000 • 5 bed • 3 bath • 3286 ft²
7 bedroom detached house for sale in Cedar Park Gardens, Wimbledon, London, SW19 — £4,650,000 • 7 bed • 6 bath • 4407 ft²


























































































































































