**Standout Features:**
- Two-bedroom flat with 35% shared ownership
- Modern open-plan living space with abundant natural light
- Access to shared roof terrace
- Allocated parking and gas central heating
- EPC Rating B; Council Tax Band D
- Conveniently located near shops, transportation, and excellent schools
**Potential Downsides:**
- Above average crime rate in the local area
- Public transport and broadband speeds may be slower than in other areas
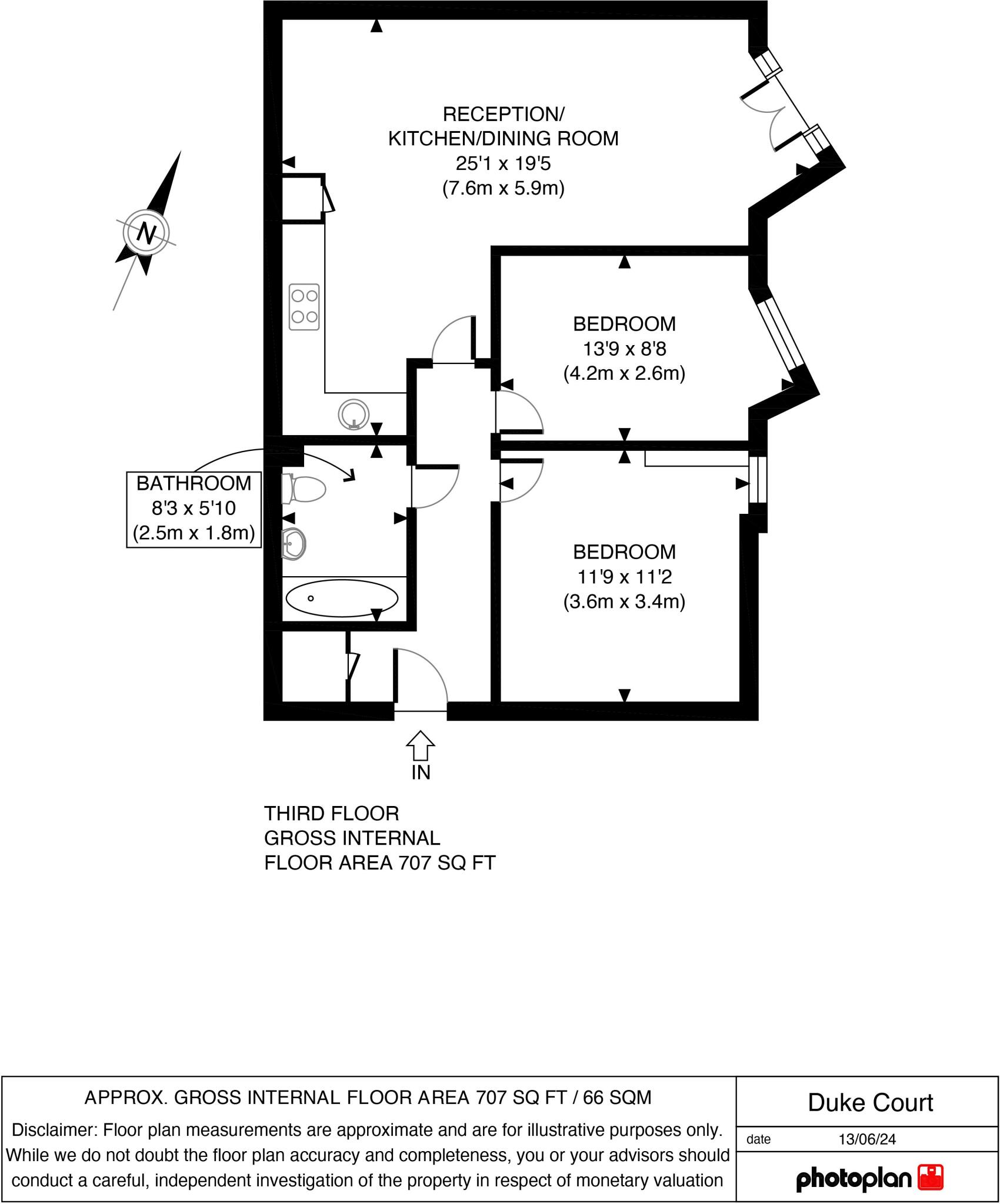
This charming third-floor apartment located on Station Road, Harrow, offers a fantastic opportunity for first-time buyers or investors looking for a modern living space with convenience and comfort. Boasting approximately 707 sq ft (66 sq m), the well-presented flat features two spacious double bedrooms, an open-plan kitchen and dining area, and a reception bathed in natural light from large modern windows. With allocated parking and the added benefit of a shared roof terrace, residents can enjoy both indoor and outdoor spaces.
Perfectly positioned near essential amenities, including shops, transportation links, and highly rated schools—such as St John Fisher Catholic Primary and Nower Hill High School—this property is ideal for families or professionals. While the area has an above-average crime rate, the potential for community and growth is evident in this multicultural neighborhood. Don't miss the opportunity to make this delightful flat your home; with its attractive price of £122,500, it won’t last long!
2 bedroom flat for sale in Station Road, Harrow, HA2 — £83,750 • 2 bed • 1 bath • 683 ft²
2 bedroom flat for sale in Station Road, Harrow, HA2 — £122,500 • 2 bed • 1 bath • 777 ft²
2 bedroom flat for sale in Pearmain House, Harrow, London, HA2 — £126,000 • 2 bed • 1 bath • 884 ft²
1 bedroom flat for sale in Headstone Drive, Harrow, HA1 — £120,000 • 1 bed • 1 bath • 509 ft²
1 bedroom flat for sale in Northolt Road, Harrow, HA2 — £102,000 • 1 bed • 1 bath • 425 ft²
1 bedroom flat for sale in Jupiter House, Harrow, London, HA2 — £128,250 • 1 bed • 1 bath • 595 ft²


































































