HA2 0FJ - 2 bedroom flat for sale in Pearmain House, Harrow, London,…

View on Property Piper

2 bedroom flat for sale in Pearmain House, Harrow, London, HA2

Summary - 7 Pearmain House, 16, Apple Grove HA2 0FJ

2 bed 1 bath Flat

**Standout Features:**
- Two-bedroom apartment with en suite
- Private balcony and parking space
- Available for 35% shared ownership with a low 5% deposit
- Bright and modern design with open-plan layout
- Excellent transport links—0.2 miles from the Underground

**Additional Details:**
- Located in a vibrant, community-rich area
- Within walking distance to local shops and parks
- Monthly charges: £838.36 (including rent and service charge)
- Rental property provides significant lifestyle affordability in London's outskirts

Discover modern living in this bright, spacious two-bedroom apartment located in the heart of Harrow. Ideal for couples or families, this contemporary flat features an en suite master bedroom, a second bedroom, and a delightful private balcony to enjoy your morning coffee. With a reasonable price tag of £126,000 for a 35% share, owning a piece of this lively area is both achievable and advantageous, especially with only a 5% deposit required. This home offers a balance of comfort and convenience—just 0.2 miles from the Underground, providing access to central London in a matter of minutes.

Residing here means you’ll be part of a friendly community with excellent local amenities, including major supermarkets, diverse dining options, and lush green spaces like Roxbourne Park. With good to outstanding-rated schools in close proximity, it is a family-friendly haven. However, keep in mind the ongoing monthly charge and potential future rent increases, as you consider your financial planning. This property represents a unique opportunity—secure your future in this vibrant location before it’s gone!

Property Details

Image Descriptions

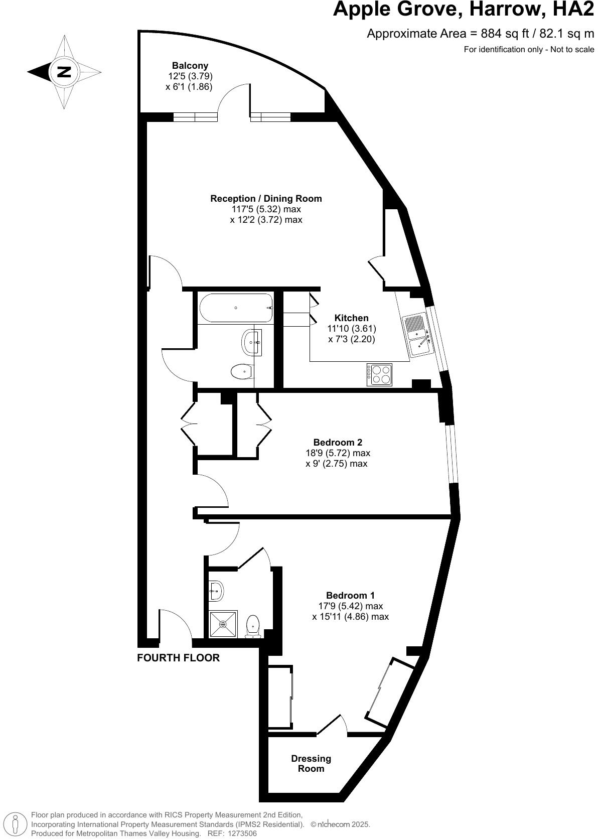
Floorplan Description

Rooms

Textual Property Features

Detected Visual Features

EPC Details

Nearby Schools

Nearest Bars And Restaurants

,,,,}

Nearest General Shops

,,}

Nearest Grocery shops

,,}

Nearest Supermarkets

,,}

Nearest Religious buildings

,,}

Nearest Medical buildings

,,,}

Nearest Airports

}

Nearest Leisure Facilities

,,,,}

Nearest Tourist attractions

,,}

Nearest Train stations

,,,,}

Nearest Bus stations and stops

,,,,}

Nearest Hotels

,,}

Tags

Local Market Stats

AirBnB Data

Similar Properties

Meta

High Res Images

Compatible Images

Low res Images

Thumbnails

Raw Images

High Res Floorplan Images

Compatible Floorplan Images

Low res Floorplan Images

FloorplanImages Thumbnail

Raw Floorplan Images