Characterful two-bed flat near town centre and station, no onward chain.
First-floor Victorian conversion with high ceilings and sash windows
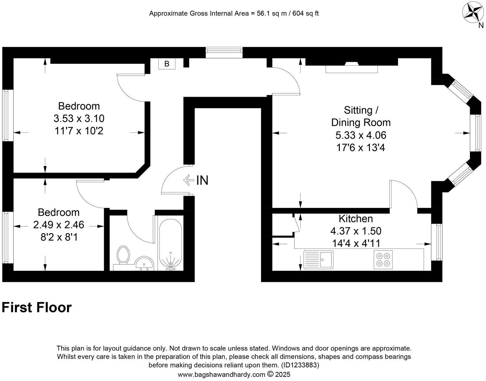
This first-floor Victorian conversion apartment sits in the sought-after St James’ area of Tunbridge Wells, offered with no onward chain. High ceilings, sash windows and a glazed bay bring period character and generous natural light into the living room, while two rear bedrooms look over communal gardens for a quiet aspect. The modern fitted kitchen and contemporary bathroom provide move-in-ready convenience.
At about 604 sq ft, the flat is compact but well laid out, ideal for first-time buyers or professionals seeking a central location close to the town centre and mainline station. The property is share of freehold with a very long lease (992 years) and self-managed service arrangements; ground rent is effectively not applicable. Council Tax Band B keeps running costs modest.
Buyers should note the small overall size and that the building has solid brick walls (typical of Victorian construction) with assumed no cavity insulation. The block is self-managed by owners on an as-and-when basis, so prospective purchasers should check maintenance arrangements and factor in any future works. No flooding risk and low local crime are additional positives for peace of mind.
2 bedroom apartment for sale in Ferndale, Hetton Lodge, TN2 — £625,000 • 2 bed • 1 bath • 1324 ft²
1 bedroom apartment for sale in St. James Road, TUNBRIDGE WELLS, Kent, TN1 — £165,000 • 1 bed • 1 bath • 534 ft²
1 bedroom flat for sale in Beulah Road, Tunbridge Wells (no chain), TN1 — £234,500 • 1 bed • 1 bath • 527 ft²
2 bedroom ground floor flat for sale in Lansdowne Road, Tunbridge Wells, TN1 — £290,000 • 2 bed • 1 bath • 571 ft²
2 bedroom flat for sale in Lansdowne Road, Tunbridge Wells, Kent, TN1 — £275,000 • 2 bed • 2 bath • 548 ft²
1 bedroom flat for sale in Beulah Road, Tunbridge Wells, TN1 — £295,000 • 1 bed • 1 bath • 850 ft²


















































