BN3 8FB - 3 bed modern semi detached in Hove, BN3 8FB

View on Property Piper

3 bedroom semi-detached house for sale in Cowdens Close Hove, BN3

Summary - 1, COWDENS CLOSE, HOVE BN3 8FB

3 bed 2 bath Semi-Detached

Turnkey three-bedroom family home with generous west-facing garden and off-street parking.
Individually refurbished throughout with contemporary finish
A contemporary, turn-key family home set at the end of a quiet cul‑de‑sac in Hove’s popular Hangleton Valley Drive area. The house has been comprehensively refurbished with a precise contemporary finish: new boiler, new windows, doors and floor coverings throughout. The living space is bright and modern, arranged over split levels with skylights and sliding doors that open onto a generous west‑facing garden.

The ground floor centres on an open‑plan living, dining and kitchen area designed for everyday family life and informal entertaining. Three double bedrooms and two luxury bathrooms upstairs give comfortable sleeping accommodation and flexibility—bathroom two is currently arranged as a combined bathroom/utility space. Off‑street parking to the front provides space for several cars and a side gate gives convenient rear access.

Practical benefits include freehold tenure, no onward chain and a brand new boiler, supporting lower immediate running and maintenance costs. The property sits in an affluent, very low‑crime neighbourhood close to good local schools, green spaces and bus links, with fast broadband and excellent mobile signal — well suited to family life and home working. The house is an average overall size, arranged over multiple levels, so internal mobility may be a consideration for some buyers.

Property Details

Brochure Descriptions

Image Descriptions

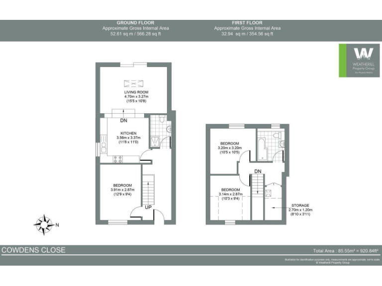
Floorplan Description

Rooms

Textual Property Features

Target Audience

AI Tags

Detected Visual Features

Nearby Schools

Nearest Bars And Restaurants

,,,,}

Nearest General Shops

,,}

Nearest Grocery shops

,,}

Nearest Supermarkets

,,}

Nearest Religious buildings

,,}

Nearest Medical buildings

,,,}

Nearest Leisure Facilities

,,,,}

Nearest Tourist attractions

,,}

Nearest Train stations

,,,,}

Nearest Bus stations and stops

,,,,}

Nearest Hotels

,,}

Tags

Local Market Stats

AirBnB Data

Similar Properties

Meta

High Res Images

Compatible Images

Low res Images

Thumbnails

Raw Images

High Res Floorplan Images

Compatible Floorplan Images

Low res Floorplan Images

FloorplanImages Thumbnail

Raw Floorplan Images