Immaculate extended family home with modern kitchen, new outbuilding and off-street parking.
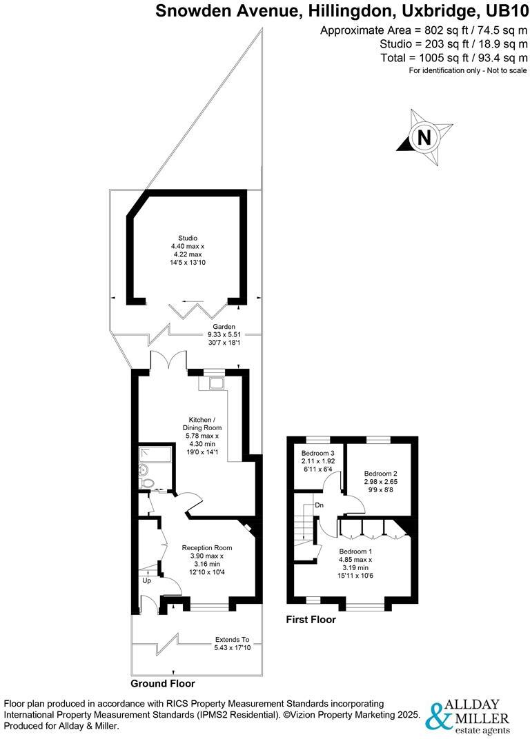
Extended three-bedroom terraced home, newly renovated throughout
Open-plan kitchen/dining room with skylight, good natural light
New high-quality outbuilding ideal as home office or studio
Rear garden mainly artificial grass — low maintenance
Off-street parking for two vehicles on front driveway
Only one bathroom; may be limiting for larger families
Modest plot size and small rear garden footprint
Solid-brick 1930s build; external wall insulation not confirmed
This extended three-bedroom terraced home on Snowden Avenue offers an immediately liveable layout for growing families. The property has been newly renovated and presents an immaculate interior with a bright, open-plan kitchen/dining room that opens to the rear garden — ideal for everyday family life and informal entertaining. A modern shower room and a convenient ground-floor WC add practical value for busy households.
Outside, the small but low-maintenance rear garden is laid mainly to artificial grass and features a newly built, high-quality outbuilding suitable for a home office, studio or storage. A front driveway provides off-street parking for two cars, a useful asset in this area. The house sits within the Oak Farm development and benefits from several well-regarded local schools and straightforward road and rail links for commuters.
Buyers should note some material constraints: the plot is modest and the property has only one bathroom, which may be limiting for larger families. The house is a mid-20th-century solid-brick build and external wall insulation is not confirmed. While recently renovated throughout, there may be further energy-improvement opportunities for long-term running-cost savings.
Overall, this property will suit families and commuters looking for a tidy, move-in-ready home in a popular school catchment, with the flexibility of a separate outbuilding for work-from-home needs. The combination of modern interior finishes, parking and location close to transport links creates practical everyday value, balanced against the small garden and single bathroom provision.
3 bedroom end of terrace house for sale in Snowden Avenue, Hillingdon, UB10 — £525,000 • 3 bed • 3 bath • 1065 ft²
2 bedroom terraced house for sale in Snowden Avenue, Uxbridge, UB10 — £435,000 • 2 bed • 1 bath • 846 ft²
3 bedroom end of terrace house for sale in Grosvenor Crescent, Hillingdon, UB10 — £530,000 • 3 bed • 1 bath • 1164 ft²
3 bedroom end of terrace house for sale in Windsor Avenue, Hillingdon. UB10 — £575,000 • 3 bed • 1 bath • 1041 ft²
2 bedroom terraced house for sale in Snowden Avenue, Hillingdon, UB10 — £440,000 • 2 bed • 1 bath • 829 ft²
3 bedroom terraced house for sale in Sutton Court Road, Uxbridge, UB10 — £500,000 • 3 bed • 1 bath • 872 ft²






















































































