Compact move-in-ready one-bedroom near green space and transport links.
- Ground-floor one-bedroom flat, recently refurbished throughout
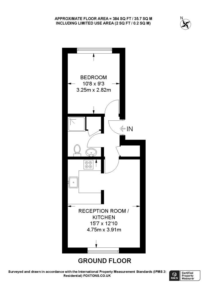
- Compact living: approximately 384 sq ft (35.7 sq m)
- Open-plan reception with modern fitted kitchen and laminate flooring
- Leasehold tenure; sold via online auction (buyer to follow auction procedure)
- Heating by electric room heaters; EPC rating D (higher running costs likely)
- Located near Tooting Bec Common and Balham High Road amenities
- Area has above-average crime rates and higher deprivation levels
- Fast broadband, excellent mobile signal; council tax band described as cheap
Recently refurbished ground-floor one-bedroom flat offering a compact, modern living space close to Tooting Bec Common. The interior has been finished to a contemporary standard with an open-plan reception and well-equipped kitchen, making it move-in ready for a buyer seeking immediate occupation or a low-effort rental asset.
Practical points: the flat totals about 384 sq ft and sits on leasehold tenure. Heating is via electric room heaters and the EPC is rated D, so running costs may be higher than gas-heated homes. The location benefits from fast broadband, excellent mobile signal and good local schools, while shops and transport along Balham High Road are within easy reach.
Buyers should note the property will be sold at online auction, with the bidding and conditional acceptance process in place. The wider area scores as relatively deprived with above-average crime statistics; purchasers should weigh location factors and service/management costs typical of leasehold flats.
This flat suits a first-time buyer wanting a low-maintenance starter home or an investor seeking a simple, ready-to-let property in a well-connected south London neighbourhood.
1 bedroom flat for sale in Henry Doulton Drive, London, SW17 — £295,000 • 1 bed • 1 bath • 376 ft²
1 bedroom flat for sale in Henry Doulton Drive, Tooting Bec, London, SW17 — £295,000 • 1 bed • 1 bath • 376 ft²
1 bedroom flat for sale in First Floor Flat, 84 Louisville Road, London, Wandsworth, SW17 8RU, SW17 — £395,000 • 1 bed • 1 bath
1 bedroom flat for sale in St Benedicts Close, Tooting, London, SW17 — £290,000 • 1 bed • 1 bath • 384 ft²
1 bedroom flat for sale in Flat A, 14 Byrne Road, London, SW12 9JD, SW12 — £330,000 • 1 bed • 1 bath • 603 ft²
2 bedroom flat for sale in Ashbourne Road, Mitcham, Surrey, CR4 — £360,000 • 2 bed • 1 bath • 644 ft²


































































