Two-bedroom single-storey home with garden, garage and loft planning permission.
Detached two-bedroom single-storey home on a decent private plot
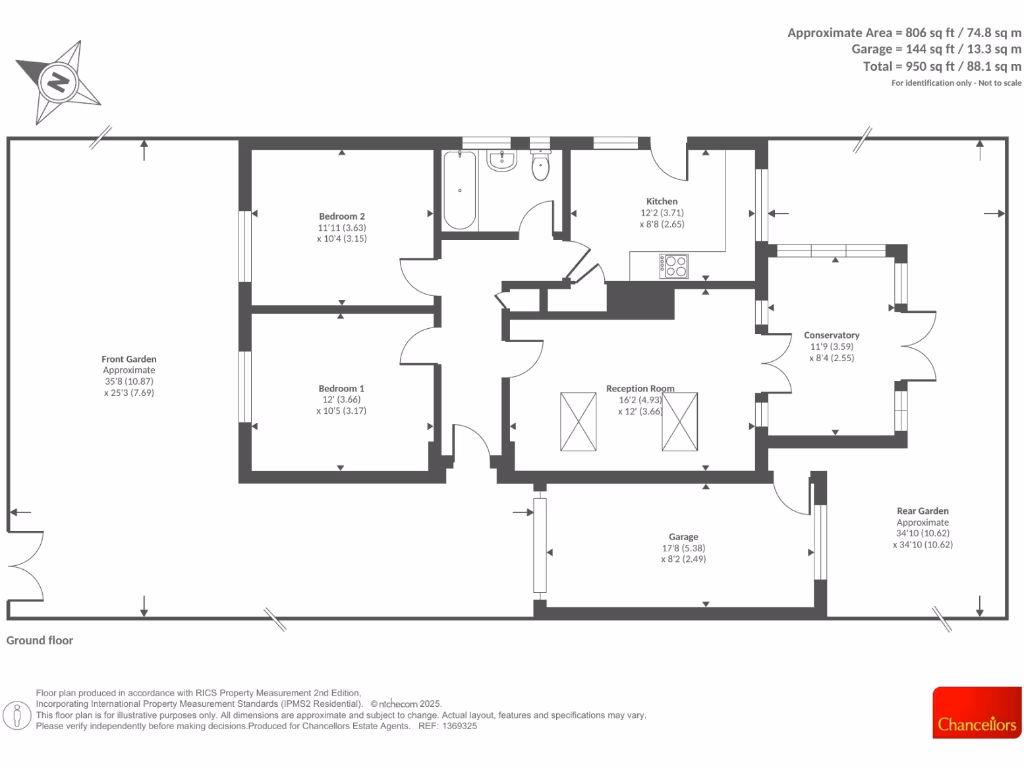
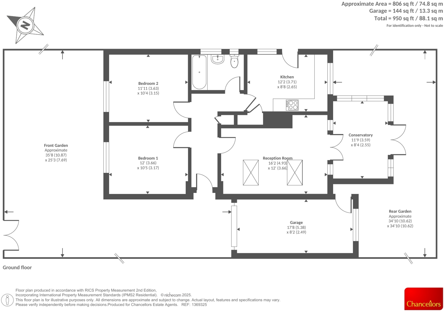
This two-bedroom detached single-storey home sits on a decent plot in the heart of Stonesfield, offering straightforward living with private outdoor space and a garage. The bungalow is well presented, with a modern bathroom, conservatory and a gated driveway that provides secure off-street parking.
Practical features include mains gas central heating with boiler and radiators, double glazing fitted post-2002, fast broadband and excellent mobile signal — useful for working from home. Planning permission is already in place for a loft conversion, presenting clear scope to create extra bedrooms or a study (subject to build completion and costs).
Rooms are modest in scale and ceiling heights are standard, so the layout suits downsizers, retirees or buyers seeking single-floor convenience; families with growing children may find the two-bedroom arrangement limiting. The property dates from the late 1960s–1970s and, while well maintained, may require routine updating over time.
Located in a very low-crime, affluent small-town setting with good and outstanding nearby primary schools, local amenities and countryside character, this home combines easy access to village life with room to adapt and add value if desired.
4 bedroom detached house for sale in Stonesfield, Oxfordshire, OX29 — £550,000 • 4 bed • 2 bath • 1801 ft²
3 bedroom detached house for sale in Busby Close, Stonesfield, OX29 — £525,000 • 3 bed • 1 bath • 1278 ft²
2 bedroom semi-detached house for sale in The Ridings, Stonesfield, Witney, OX29 — £450,000 • 2 bed • 1 bath • 1229 ft²
3 bedroom detached bungalow for sale in Greenfield Crescent, Stonesfield, OX29 — £550,000 • 3 bed • 1 bath • 1201 ft²
4 bedroom detached house for sale in Peaks Lane, Stonesfield, OX29 — £750,000 • 4 bed • 2 bath • 1909 ft²
2 bedroom semi-detached bungalow for sale in Quarry End, Begbroke, OX5 — £385,000 • 2 bed • 1 bath • 748 ft²


































































































