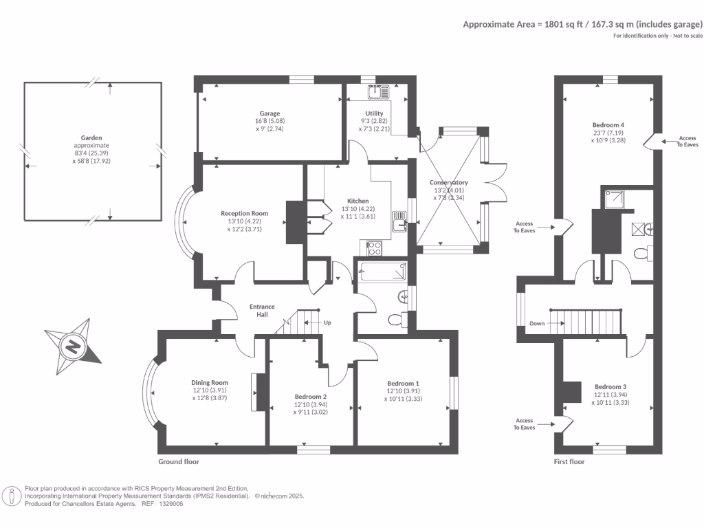
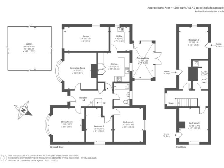
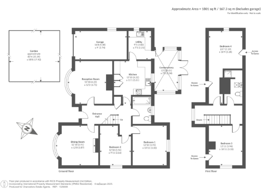
Four-bedroom detached home with approx 1,801 sq ft
Set on a generous plot in sought-after Stonesfield, this spacious four-bedroom detached home offers flexible accommodation across two storeys. The property features two bay-fronted reception rooms, a kitchen/breakfast room, utility, conservatory and an integral garage, arranged around a mature 70ft rear garden — ideal for family life and entertaining.
A practical layout includes two ground-floor bedrooms and a family bathroom, plus two first-floor bedrooms and a shower room, giving scope for multigenerational living or home office use. At approximately 1,801 sq ft the house feels generous without being oversized, and is sold chain free for a straightforward move.
There are some straightforward improvements to consider: the house dates from the 1950–66 period, cavity walls are assumed uninsulated, and the double glazing was installed before 2002, so updating to modern efficiency standards would add long-term value. Council tax is above average.
Positioned in a very low-crime, affluent area with excellent mobile signal and fast broadband, the home sits within reach of good local schools and village amenities, with easy access to surrounding countryside. This is a strong proposition for families seeking space, scope to personalise, and a peaceful village setting.
6 bedroom detached house for sale in Stonesfield, Oxfordshire, OX29 — £1,450,000 • 6 bed • 4 bath • 4099 ft²
3 bedroom house for sale in Cockshoot Close, Stonesfield, Witney, OX29 — £400,000 • 3 bed • 1 bath • 1324 ft²
4 bedroom semi-detached house for sale in Stonesfield, Oxfordshire, OX29 — £375,000 • 4 bed • 1 bath • 1133 ft²
4 bedroom detached house for sale in Peaks Lane, Stonesfield, OX29 — £750,000 • 4 bed • 2 bath • 1909 ft²
5 bedroom detached house for sale in William Buckland Way, Stonesfield, OX29 — £1,150,000 • 5 bed • 3 bath • 3279 ft²
3 bedroom detached house for sale in Busby Close, Stonesfield, OX29 — £525,000 • 3 bed • 1 bath • 1278 ft²










































































































