Grand period property on expansive private grounds with stable and garage.
Five very generous double bedrooms and three reception rooms
Set within very large, sheltered grounds, this mid‑Victorian detached property offers expansive living space and pronounced period character. High ceilings, bay windows, cornice detailing and large reception rooms make it easy to imagine a restored family home with strong kerb appeal. The house is freehold and includes a garage, stables and extensive lawns bordered by mature planting for privacy.
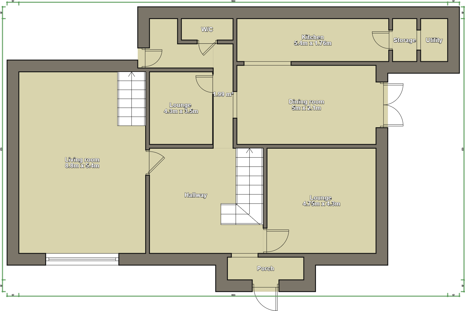
The layout includes three reception rooms, a sizable kitchen‑diner, utility and WC on the ground floor, with five very generous double bedrooms and a family bathroom upstairs. With roughly 2,669 sq ft across around nine principal rooms, the house suits buyers seeking roomy accommodation and the chance to reconfigure or modernise to contemporary standards.
Important practical points: the property needs renovation throughout, with no assumed wall insulation, oil‑fired boiler and very slow broadband. These factors mean running costs, heating upgrades and connectivity improvements should be budgeted for. The area is classified as ageing urban communities with higher-than-average deprivation, and local services and speeds reflect that context.
For someone comfortable with a refurbishment project, Werfa House presents strong potential — large plot, listed‑era proportions and a peaceful city‑edge position. The absence of flooding risk and the provision of outbuildings and parking add to its long‑term appeal, but buyers should allow time and money for modernisation and energy‑efficiency works.
5 bedroom semi-detached house for sale in Camden Road, Brecon, Powys, LD3 — £600,000 • 5 bed • 2 bath • 1797 ft²
6 bedroom smallholding for sale in Crynant, Neath, SA10 — £585,000 • 6 bed • 2 bath • 3606 ft²
3 bedroom detached house for sale in Five Locks Road, Pontnewydd, Cwmbran, NP44 — £360,000 • 3 bed • 2 bath • 1450 ft²
3 bedroom detached house for sale in Ty'r Darren, Abercynon, Mountain Ash, CF45 — £400,000 • 3 bed • 1 bath • 1816 ft²
5 bedroom detached house for sale in School Road, Crynant, Neath, Neath Port Talbot., SA10 — £325,000 • 5 bed • 3 bath • 1109 ft²
5 bedroom farm house for sale in Gwernau Hall, Pandy Lane, Maesycwmmer, Hengoed, CF82 — £850,000 • 5 bed • 2 bath • 2379 ft²






































































































































































































































































































